

KHC Bauträger GmbH
Frau Janet Schrepel
037 ···
Nr. anzeigenPreise & Kosten
Provision für Käufer
provisionsfrei
Lage
Das Grundstück befindet sich in einer wunderschönen Lage von Gornau. Es ist großzügig und rechteckig geschnitten.
Eine gute Infrastruktur lässt viele Familien nach Gornau ziehen. Geographisch liegt es in der Nähe von Chemnitz und dem Tor zum Erzgebirge. Es gibt Kindergärten, Grundschule, Läden des täglichen Bedarfes und...
Das Haus
Kategorie
Einfamilienhaus
Baujahr
2026
Energie & Heizung
Warum sehe ich diese Anzeige? – Du siehst diese Anzeige basierend auf Ihrer Navigation auf unserer Website und den Suchkriterien, die du verwendet hast.
Energieausweistyp
Bedarfsausweis
Gebäudetyp
Wohngebäude
Baujahr laut Energieausweis
2026
Gültigkeit
seit 04.01.2016
Effizienzklasse
A
Weitere Energiedaten
Heizungsart
Fußbodenheizung, Zentralheizung
Details
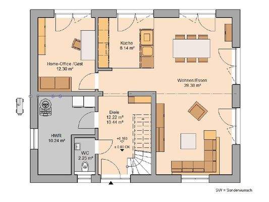
Objektbeschreibung
Architektenhaus Anto präsentiert sich vielfältig auf zwei Etagen mit einem innovativen Grundriss, der Wünsche wahr werden lässt. Im Erdgeschoss betreten Sie das Haus durch eine geräumige Diele, die offen in die Küche übergeht. Die Küche wird zum Mittelpunkt des Wohnbereiches. Direkt daneben befindet sich der Esstisch, wo man...
Ausstattung
5 Zimmer, offene Küche, Diele, Flur, Bad, WC, Ankleide, Hauswirtschaftsraum
Das gezeigte Traumhaus im Überblick:
+ Massivhaus im Sinne der Ausstattungsbeschreibung "Nestbau"
+ Zukunftsorientierte Energieausstattung in Form einer Luft-Wasser-Wärmepumpe und Fußbodenheizung
Beste Markenausstattung in...
Weitere Informationen
Sonstiges
Bei Kern-Haus Chemnitz kümmern sich 10 Beschäftigte um das gute Gelingen Ihres Traumhauses. Alle Leistungen werden von unseren Mitarbeitern vor Ort erbracht - von der Beratung, über die Planung bis hin zur Bauleitung. Die Bauleistungen an Ihrem Kern-Haus führen regionale Bauunternehmen fachgerecht aus. Kurze Wege...
Anbieter der Immobilie

Online-ID: 2nwsu5h
Referenznummer: KH 101_17
Finde Angebote wie dieses
Hier geht es zu unserem Impressum, den Allgemeinen Geschäftsbedingungen, den Hinweisen zum Datenschutz und nutzungsbasierter Online-Werbung.