

hauswerk-24 GmbH Co. KG
Herr Andreas Malow
+49 ···
Nr. anzeigenPreise & Kosten
Provision für Käufer
provisionsfrei
Lage
Lagebeschreibung – Armsheim
Armsheim ist verkehrstechnisch hervorragend angebunden. Die Bundesstraße B420 führt direkt durch den Ort, und die Autobahn A63 ist in wenigen Minuten erreichbar. Dadurch besteht eine schnelle Verbindung zu den regionalen Zentren Mainz und Kaiserslautern.
Darüber hinaus verfügt...
Das Haus
Geschosse
3 Geschosse
Baujahr
2026
Bezug
2027
Energie & Heizung
Warum sehe ich diese Anzeige? – Du siehst diese Anzeige basierend auf Ihrer Navigation auf unserer Website und den Suchkriterien, die du verwendet hast.
Weitere Energiedaten
Haustyp
KfW 40, Massivhaus
Energieträger
Elektro
Heizungsart
Fußbodenheizung, Luft-/Wasser-Wärmepumpe, Zentralheizung
Details
Objektbeschreibung
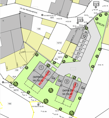
Unser Neubauprojekt „An der Nikolauspforte 2“ in Armsheim
familienfreundlich, modern, förderfähig
In einer absoluten Bestlage von Armsheim entsteht ein durchdachtes Wohnensemble mit 4 Einfamilienhäusern – perfekt für
Familien und Naturliebhaber, die Wert auf Komfort, Nachhaltigkeit und Lebensqualität...
Ausstattung
Bau- und Leistungsbeschreibung
Planung & Genehmigung
Komplette Planungsleistungen inklusive Baugenehmigung
Tragwerksplanung (Statik) inklusive
Wärmeschutznachweis und Energieausweis inklusive.
Individuelle Umplanungen nach Ihren Wünschen möglich
Erstellung sämtlicher Unterlagen für Ihre...
Weitere Informationen
Energiequelle:
Solarenergie
Stichworte
Sonstiges/Wohnen: Dachboden
Versorgung: Städtische Wasserversorgung, Städtische Stromversorgung, Eigene Stromversorgung, Regenwassernutzung
Dokumente
Anbieter der Immobilie
hauswerk-24 GmbH Co. KG
Börsenplatz 1, 60313 Frankfurt am Main

Online-ID: 2nwsj5t
Finde Angebote wie dieses
Hier geht es zu unserem Impressum, den Allgemeinen Geschäftsbedingungen, den Hinweisen zum Datenschutz und nutzungsbasierter Online-Werbung.