
PSK Immobilien
Herr Sven Skrzypzak
034 ···
Nr. anzeigenPreise & Kosten
Kaution
1.500,00 €
Warum sehe ich diese Anzeige? – Du siehst diese Anzeige basierend auf Ihrer Navigation auf unserer Website und den Suchkriterien, die du verwendet hast.
Lage
Die Wohnung befindet sich in direkter Innstadtlage von Sangerhausen. Einkaufsmöglichkeiten, Behörden, Ärzte, Kindereinrichtung, Kino, Restaurant sind in nur wenigen Gehminuten zu erreichen.
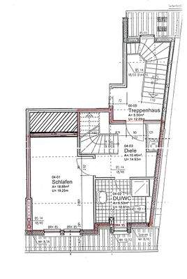
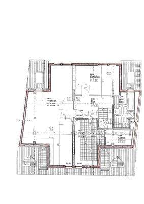
Die Wohnung
Wohnungslage
2. Geschoss (Dachgeschoss)
Bezug
01.07.2026
Wohnanlage
Energie & Heizung
Warum sehe ich diese Anzeige? – Du siehst diese Anzeige basierend auf Ihrer Navigation auf unserer Website und den Suchkriterien, die du verwendet hast.
Energieausweis: für diesen Gebäudetyp nicht notwendig
Weitere Energiedaten
Energieträger
Gas
Details
Objektbeschreibung
Die Wohneinheit erstreckt sich über 2 Ebenen (2.OG/Dachgeschoss) eines Geschäfts- und Mehrfamilienhauses im Stadtzentrum von Sangerhausen. Auf eine Wohnfläche von ca. 131 m² verteilt, wartet auf Sie eine tolle 3-Raumwohnung. Auf Wunsch kann ein Stellplatz für monatlich 35,- € angemietet werden.
Ausstattung
* Wohnzimmer
* Schlafzimmer
* Kinderzimmer
* Küche
* Hauswirtschaftsraum/ Abstellraum
* 2 Bäder mit WC
* Dachterrassenanteil
Weitere Informationen
Fotos werden nachgereicht.
Anbieter der Immobilie
PSK Immobilien
Riestedter Str. 30, 06526 Sangerhausen
Online-ID: 2nwsg5k
Finde Angebote wie dieses
Hier geht es zu unserem Impressum, den Allgemeinen Geschäftsbedingungen, den Hinweisen zum Datenschutz und nutzungsbasierter Online-Werbung.