

FrankSiegmannImmobilien
Herr Frank Siegmann
021 ···
Nr. anzeigenPreise & Kosten
Provision für Käufer
4,76 % inkl. ges. MwSt.
Lage
Das Objekt befindet sich in einer der gefragtesten Wohnlagen von Bergisch Gladbach im Stadtteil
Bensberg.
Bensberg steht seit jeher für eine gewachsene, hochwertige Wohnstruktur, anspruchsvolle Nachbar-
schaft und eine ausgezeichnete Infrastruktur. Einkaufsmöglichkeiten, Schulen, Kindergärten, Ärzte so-
wie...
Das Haus
Kategorie
Villa
Baujahr
2026
Energie & Heizung
Warum sehe ich diese Anzeige? – Du siehst diese Anzeige basierend auf Ihrer Navigation auf unserer Website und den Suchkriterien, die du verwendet hast.
Weitere Energiedaten
Heizungsart
Fußbodenheizung, Luft-/Wasser-Wärmepumpe
Details
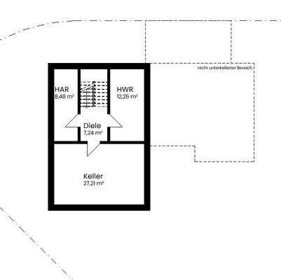
Objektbeschreibung
In begehrter Wohnlage von Bergisch Gladbach-Bensberg entsteht dieses architektonisch klare Ein-
familienhaus im modernen Bauhausstil. Das freistehende Neubauhaus überzeugt mit zwei Vollge-
schossen, rund 200 m² Wohnfläche und einem ideal durchdachten Grundriss für anspruchsvolle Fa-
milien.
Herzstück des...
Ausstattung
Dieses Einfamilienhaus überzeugt durch eine Ausstattung, die Komfort und Qualität auf höchstem
Niveau vereint. Schon beim Betreten spürt man die Liebe zum Detail und den Anspruch an moderne
Wohnkultur. Der großzügige Wohn- und Essbereich öffnet sich mit bodentiefen Fenstern zur Terrasse
und schafft ein...
Weitere Informationen
Stichworte
Anzahl der Schlafzimmer: 3, Anzahl der Badezimmer: 1, Anzahl Terrassen: 1, 2 Etagen, Distanz zum Kindergarten: 0.50, Distanz zur Grundschule: 1.20, Distanz zum Gymnasium: 1.80, Distanz zur Autobahn: 3.00, Distanz vom Zentrum: 1.30
Anbieter der Immobilie

Online-ID: 2nwrr5y
Referenznummer: 404
Finde Angebote wie dieses
Hier geht es zu unserem Impressum, den Allgemeinen Geschäftsbedingungen, den Hinweisen zum Datenschutz und nutzungsbasierter Online-Werbung.