
Andre Thiel - ATIS Immobilien
Herr Andre Thiel
021 ···
Nr. anzeigenPreise & Kosten
Provision für Käufer
3,57 % des Kaufpreises inkl. MwSt.
Lage
Steinforth ist ein idyllischer Ortsteil im Süden der Stadt Korschenbroich im Rhein-Kreis Neuss und verbindet ländlichen Charme mit einer von Gemeinschaft geprägten Atmosphäre. Am südlichen Stadtrand gelegen, grenzt Steinforth an die Ortsteile Rubbelrath, Glehn und Liedberg sowie an das bekannte Schloss Dyck. Die Nachbarschaft...
Das Haus
Kategorie
Einfamilienhaus
Energie & Heizung
Warum sehe ich diese Anzeige? – Du siehst diese Anzeige basierend auf Ihrer Navigation auf unserer Website und den Suchkriterien, die du verwendet hast.
Weitere Energiedaten
Energieträger
Öl
Details
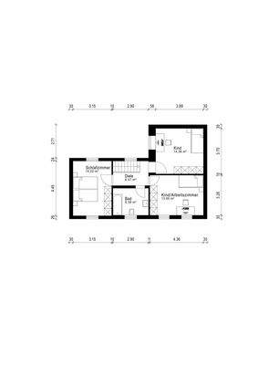
Objektbeschreibung
Die ideale Immobilie für Handwerker und Kreative!
Mit einer Wohnfläche von ca. 113 m² präsentiert sich dieses Haus mit einer klassischen Grundrissgestaltung. Die ehemalige Hofstelle wurde schätzungsweise um 1930 erbaut und lässt sich nach einer umfassenden Renovierung und Modernisierung in ein zeitgemäßes...
Ausstattung
Die Immobilie befindet sich in einem stark sanierungsbedürftigen Zustand und gewährt damit eine freie Gestaltung nach eigenen Vorstellungen.
Im Folgenden erhalten Sie einen Auszug der Ausstattungsdetails:
- Klassische Raumaufteilung mit offenem Wohnkonzept (Wohnzimmer, Küche, Eingangsbereich)
- 3...
Preisinformation
1 Stellplatz
Weitere Informationen
Sonstiges
Zusätzlich besteht die Möglichkeit, ein angrenzendes Grundstück mit einer Fläche von ca. 540 m² (Straßenfront ca. 15 m | Tiefe ca. 36 m) zum Preis von 199.000 € zu erwerben.
Der Energieausweis befindet sich aktuell in Erstellung und wird zeitlich nachgereicht.
Eine Besichtigung sagt mehr als jede...
Anbieter der Immobilie
Online-ID: 2nwrn5c
Referenznummer: AT21612
Finde Angebote wie dieses
Hier geht es zu unserem Impressum, den Allgemeinen Geschäftsbedingungen, den Hinweisen zum Datenschutz und nutzungsbasierter Online-Werbung.