
Landhaus Wandlitz GmbH & Co. KG
Frau Claudia Mathea
033 ···
Nr. anzeigenPreise & Kosten
Provision für Käufer
provisionsfrei
Lage
Strausberg, auch als Pforte zum Oderbruch; bekannt, bietet Ihnen einen atrraktiven Mix aus naturnahem Wohnen und urbaner Anbindung. Das Objekt liegt in einer begehrten Villengegend, die von viel Grün und einer sehr ruhigen Atmosphäre geprägt ist. Direkt vor der Tür eröffnen sich zahlreiche Freizeitmöglchkeiten und die...
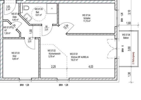
Die Wohnung
Wohnungslage
1. Geschoss
Bezug
2027
Wohnanlage
Energie & Heizung
Warum sehe ich diese Anzeige? – Du siehst diese Anzeige basierend auf Ihrer Navigation auf unserer Website und den Suchkriterien, die du verwendet hast.
Energieausweistyp
Verbrauchsausweis
Gebäudetyp
Wohngebäude
Effizienzklasse
A+
Endenergieverbrauch
23,40 kWh/(m²·a)
Weitere Energiedaten
Energieträger
Elektro
Heizungsart
Fußbodenheizung, Luft-/Wasser-Wärmepumpe
Details
Objektbeschreibung
Objektbeschreibung
Willkommen in Ihrem neuen Zuhause. Diese barrierefreie 2,5-Zimmer-Wohnung im 1. OG des Neubauprojekts Annabelle vereint moderne Architektur, hochwertige Ausstattung und ein nachhaltiges Energiekonzept. In einem eleganten, dreigeschossigen Mehrfamilienhaus, eingebettet in eine ruhige Villengegend nahe...
Weitere Informationen
Beratungstermine
Gern vereinbaren wir einen individuellen Beratungstermin,
Sie können sich in unserem Wandlitzer Büro gerne von der qualitativ hochwertigen Ausführung und der Ausstattung unserer Wohnungen überzeugen. Wir zeigen Ihnen auch gerne die Fassadengestaltung der Häuser im Louisenhain in Wandlitz.
Nicht das...
Anbieter der Immobilie
Online-ID: 2nwq55w
Finde Angebote wie dieses
Hier geht es zu unserem Impressum, den Allgemeinen Geschäftsbedingungen, den Hinweisen zum Datenschutz und nutzungsbasierter Online-Werbung.