

Elbert Immobilien
Frau Anne-Katrin Elbert
Kontaktiere den Anbieter schriftlich, es ist keine Telefonnummer hinterlegt.
Preise & Kosten
Provision für Käufer
Die Höhe der Courtage beträgt für beide Parteien (Eigentümer und Käufer) jeweils 2,975% auf den Kaufpreis inklusive gesetzlicher Umsatzsteuer und ist bei notariellem Vertragsabschluss verdient und fällig.
Lage
Das Mehrfamilienhaus befindet sich in einer nachgefragten Wohnlage von Rosdorf, mit perfekter Anbindung an die Göttinger Innenstadt (weniger als 5 Km von Göttingen entfernt). Gleichzeitig bietet der Standort selbst eine sehr gute Infrastruktur – Lebensmittelgeschäfte, Schulen, Kindertagesstätten, Ärzte und Apotheken befinden...
Die Wohnung
Kategorie
Maisonette
Wohnungslage
1. Geschoss
Bezug
sofort
Wohnanlage
Energie & Heizung
Warum sehe ich diese Anzeige? – Du siehst diese Anzeige basierend auf Ihrer Navigation auf unserer Website und den Suchkriterien, die du verwendet hast.
Energieausweistyp
Verbrauchsausweis
Gebäudetyp
Wohngebäude
Baujahr laut Energieausweis
1993
Wesentliche Energieträger
Erdgas
Gültigkeit
10.08.2018 bis 10.08.2028
Effizienzklasse
C
Endenergieverbrauch
96,00 kWh/(m²·a)
Weitere Energiedaten
Energieträger
Gas
Heizungsart
Zentralheizung
Details
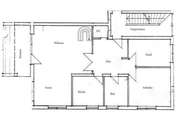
Objektbeschreibung
Großzügigkeit auf zwei Ebenen - ein Zuhause voller Möglichkeiten. Wohnung für 3 Personen auf der oberen Ebene (ca. 95 m² Wohnfläche) und großzügigem Bereich für Hobby, Homeoffice oder eine gewerbliche Vermietung auf der unteren Ebene (ca. 91 m² Nutzfläche).
Bereits beim Betreten der Wohnung wird deutlich, dass es sich...
Ausstattung
AUSSTATTUNG UND HIGHLIGHTS:
• ca. 95 m² Wohnfläche im Erdgeschoss
• ca. 91 m² ausgebaute Nutzfläche im Untergeschoss
• interne Verbindung beider Ebenen + separate Zugänge
• großzügiger Wohn- und Essbereich
• überdachter Südbalkon mit hoher Privatsphäre
• Tageslichtbad + Gäste-WC...
Weitere Informationen
Alle Angaben sind ohne Gewähr und basieren ausschließlich auf Informationen, die uns von unserem Auftraggeber übermittelt wurden. Wir übernehmen keine Garantie für die Vollständigkeit, Richtigkeit und Aktualität dieser Angaben.
Insbesondere die Angaben zur Wohn- und Nutzfläche haben wir durch ein eigenes Aufmaß nicht...
Anbieter der Immobilie
Elbert Immobilien
Waitzweg 5, 37085 Göttingen

Frau Anne-Katrin Elbert
Dein Ansprechpartner
Kontaktiere den Anbieter schriftlich, es ist keine Telefonnummer hinterlegt.
Online-ID: 2nwpz5j
Finde Angebote wie dieses
Hier geht es zu unserem Impressum, den Allgemeinen Geschäftsbedingungen, den Hinweisen zum Datenschutz und nutzungsbasierter Online-Werbung.