

Wehrhahn Immobilien e.K.
Herr Maximilian Wehrhahn
+49 ···
Nr. anzeigenPreise & Kosten
Provision für Käufer
3,57% inkl. 19% MwSt. inkl. MwSt.
Lage
Bargteheide ist eine Stadt mit ca. 16.000 Einwohnern und liegt inmitten einer reizvollen Landschaft. Das Schloss Tremsbüttel, der Duvenstedter Brook, Forst- und Parkgelände von Jersbek liegen in unmittelbarer Umgebung. Nur wenige Autominuten benötigt man zur Autobahn A1, um an die Ostseebäder, nach Lübeck oder nach Hamburg zu...
Das Haus
Kategorie
Reihenmittelhaus
Baujahr
2007
Bezug
sofort
Energie & Heizung
Warum sehe ich diese Anzeige? – Du siehst diese Anzeige basierend auf Ihrer Navigation auf unserer Website und den Suchkriterien, die du verwendet hast.
Energieausweistyp
Bedarfsausweis
Gebäudetyp
Wohngebäude
Baujahr laut Energieausweis
2007
Wesentliche Energieträger
GAS
Gültigkeit
bis 12.02.2036
Effizienzklasse
D
Endenergiebedarf
100,59 kWh/(m²·a)
Weitere Energiedaten
Haustyp
Massivhaus
Details
Objektbeschreibung
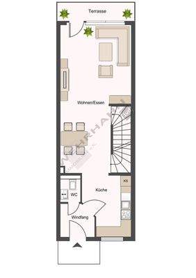
Das hier angebotene Reihenmittelhaus wurde im Jahr 2006/07 erbaut und verfügt über eine Wohnfläche von ca. 92 m². Es ist größtenteils unterkellert und bietet dadurch zusätzlich ca. 26 m² Nutzfläche.
Beim Betreten des Hauses gelangen Sie zunächst in den Windfang, von dem auch das Gäste-WC erreichbar ist. Durchqueren Sie...
Preisinformation
1 Stellplatz
Weitere Informationen
Sonstiges
Als Familienbetrieb mit fast 40 Jahren Erfahrung im Immobilienbereich sind wir Ihr zuverlässiger Partner. Unser engagiertes Team von IHK-geprüften Immobilienkaufleuten steht Ihnen tatkräftig zur Seite und kümmert sich um sämtliche Schritte im Verkaufs- und Vermietungsprozess.
Unser Rundum-Service umfasst...
Dokumente
Anbieter der Immobilie
Wehrhahn Immobilien e.K.
Rathausstraße 1 B, 22941 Bargteheide

Online-ID: 2nwlp5n
Referenznummer: 6422
Finde Angebote wie dieses
Hier geht es zu unserem Impressum, den Allgemeinen Geschäftsbedingungen, den Hinweisen zum Datenschutz und nutzungsbasierter Online-Werbung.