

Immobilien Gallery GmbH
Herr Yashar Chinahkash
023 ···
Nr. anzeigenPreise & Kosten
Provision für Käufer
3,57 % inkl. MwSt.
Lage
Das Objekt befindet sich in bevorzugter, wohnlicher Lage in Dortmund-Derne.
Das Haus
Kategorie
Einfamilienhaus
Baujahr
1981
Bezug
sofort
Energie & Heizung
Warum sehe ich diese Anzeige? – Du siehst diese Anzeige basierend auf Ihrer Navigation auf unserer Website und den Suchkriterien, die du verwendet hast.
Energieausweistyp
Verbrauchsausweis
Gebäudetyp
Wohngebäude
Wesentliche Energieträger
Erdgas leicht
Gültigkeit
05.08.2025 bis 04.08.2035
Effizienzklasse
G
Endenergieverbrauch
225,40 kWh/(m²·a)
Weitere Energiedaten
Energieträger
Gas
Heizungsart
offener Kamin
Details
Objektbeschreibung
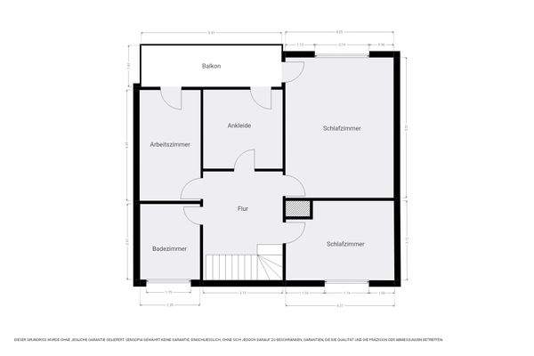
Das freistehende Einfamilienhaus wurde im Jahr 1981 als Fertighaus errichtet und bietet eine bewohnbare Fläche von ca. 230 m², verteilt auf drei Etagen, ergänzt durch eine zusätzliche Kellerfläche von ca. 90 m². Daraus ergibt sich eine großzügige Gesamtfläche von rund 320 m². Insgesamt stehen 6,5 Zimmer zur Verfügung, die...
Preisinformation
1 Stellplatz
1 Garagenstellplatz
Weitere Informationen
Stichworte
Garage vorhanden, Anzahl der Schlafzimmer: 2, Anzahl der Badezimmer: 1, Anzahl der separaten WCs: 1, Anzahl Balkone: 1, Anzahl Terrassen: 1, Kellerfläche: 92,00 m², Dachbodenfläche: 65,00 m², 2 Etagen, modernisiert: 2025
Anbieter der Immobilie
Immobilien Gallery GmbH
Brückstraße 48, 44787 Bochum

Online-ID: 2nwkp5e
Referenznummer: 1004465#vubm1
Finde Angebote wie dieses
Hier geht es zu unserem Impressum, den Allgemeinen Geschäftsbedingungen, den Hinweisen zum Datenschutz und nutzungsbasierter Online-Werbung.