
Haus und Grund in Stormarn Service GmbH
Herr Mathias Schmidt
045 ···
Nr. anzeigenPreise & Kosten
Provision für Käufer
Der Käufer zahlt eine Courtage von nur 2,38% inkl. MwSt.
Lage
Das Objekt befindet sich in einer schönen und zentrumsnahen Lage von Reinfeld. Der Bahnhof sowie die Innenstadt und auch der Herrenteich sind in nur wenigen Minuten fußläufig zu erreichen.
Reinfeld gehört aufgrund seiner verkehrsgünstigen Lage und der grünen Umgebung zu einem der beliebtesten Wohnorte zwischen Hamburg und...
Das Haus
Kategorie
Reihenmittelhaus
Baujahr
1978
Energie & Heizung
Warum sehe ich diese Anzeige? – Du siehst diese Anzeige basierend auf Ihrer Navigation auf unserer Website und den Suchkriterien, die du verwendet hast.
Energieausweistyp
Verbrauchsausweis
Gebäudetyp
Wohngebäude
Baujahr laut Energieausweis
1978
Wesentliche Energieträger
Öl
Gültigkeit
10.11.2025 bis 09.11.2035
Effizienzklasse
C
Endenergieverbrauch
87,00 kWh/(m²·a)
Details
Objektbeschreibung
Willkommen in Ihrem neuen Zuhause! Dieses gepflegte Familienhaus überzeugt durch seine durchdachte Raumaufteilung, seine ruhige und zugleich zentrale Lage sowie ideale Voraussetzungen für eine junge Familie mit drei Kindern.
In bester Lage von Reinfeld – nur wenige Schritte vom idyllischen Herrenteich entfernt und in...
Weitere Informationen
Sonstiges
Sonstiges
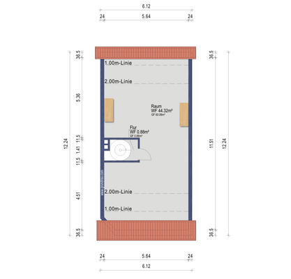
Die Angaben über das Objekt wurden uns von dem Auftraggeber mitgeteilt. Wir übernehmen keine Gewähr für die Vollständigkeit, Richtigkeit und Aktualität dieser Angaben. Die im Grundriss oder auf Bildern gezeigten Möbel bieten nur einen Einrichtungsvorschlag und sind nicht im Preis enthalten. Unser...
Anbieter der Immobilie
Haus und Grund in Stormarn Service GmbH
Mühlenstraße 1, 23843 Bad Oldesloe
Online-ID: 2nwfn5d
Referenznummer: 349
Finde Angebote wie dieses
Hier geht es zu unserem Impressum, den Allgemeinen Geschäftsbedingungen, den Hinweisen zum Datenschutz und nutzungsbasierter Online-Werbung.