
1FINANZ - Meine erste Wahl.OHG
004 ···
Nr. anzeigenPreise & Kosten
Provision für Käufer
2,38 zzgl. MwSt.
Lage
Willkommen in Volksdorf - dem charmanten Stadtteil im grünen Nordosten Hamburgs! Hier erwartet Sie ein echtes Juwel an Lebensqualität, das perfekte Gleichgewicht zwischen urbanem Lifestyle und naturnahem Wohnen. Volksdorf ist bekannt für seine idyllische Umgebung, gesäumt von üppigen Parks und Wäldern, die dazu einladen, die...
Das Haus
Kategorie
Reihenmittelhaus
Baujahr
1960
Energie & Heizung
Warum sehe ich diese Anzeige? – Du siehst diese Anzeige basierend auf Ihrer Navigation auf unserer Website und den Suchkriterien, die du verwendet hast.
Energieausweistyp
Bedarfsausweis
Gebäudetyp
Wohngebäude
Baujahr laut Energieausweis
1960
Wesentliche Energieträger
GAS
Gültigkeit
bis 17.02.2036
Effizienzklasse
F
Endenergiebedarf
190,40 kWh/(m²·a)
Weitere Energiedaten
Energieträger
Gas
Heizungsart
offener Kamin
Details
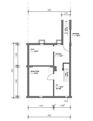
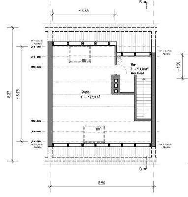
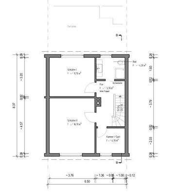
Objektbeschreibung
Ihr neues gemütliches Zuhause im charmanten Hamburg-Volksdorf! Dieses modernisierte Reihenmittelhaus aus dem Jahr 1960 wartet darauf, mit Leben gefüllt zu werden. Auf ca. 156 m² Wohn- und Nutzfläche (DIN277), bietet das Haus Platz für all Ihre Bedürfnisse.
Diese Immobilie wurde im Lauf der Jahre nach und nach in vielen...
Ausstattung
Bereits durchgeführte Modernisierungen werten diese Immobilie deutlich auf und geben Sicherheit für die Zukunft. So wurden im Laufe der letzten Jahre viele Neuinvestitionen von ca. 80.000 € bereits umgesetzt.
Ausstattungsmerkmale sind:
- ausreichende Anzahl an Zimmern
- eine sehr wertig umgesetzte Treppe in...
Weitere Informationen
Sonstiges
Unsere Anmerkungen, Sonstiges:
Sie konnten sich nun einen ersten Eindruck durch unser Angebot verschaffen.
Alle wesentlichen Daten haben wir für Sie hier zusammengefasst.
Nach unseren Erfahrungen sollten Sie zur Bildung Ihres Gesamturteils, eine Besichtigung und die persönliche Beratung durch uns in...
Anbieter der Immobilie
Online-ID: 2nwfc5r
Referenznummer: 1F-126-25
Finde Angebote wie dieses
Hier geht es zu unserem Impressum, den Allgemeinen Geschäftsbedingungen, den Hinweisen zum Datenschutz und nutzungsbasierter Online-Werbung.