
Dr. Friedlmaier Immobilien
Herr Niclas Holly
089 ···
Nr. anzeigenPreise & Kosten
Provision für Käufer
2,38 % (inkl. MwSt) errechnet aus dem Kaufpreis
Die Käuferprovision beträgt 2,38 % inkl. gesetzlicher Mehrwertsteuer vom wirtschaftlichen Kaufpreis. Unsere Angebote erfolgen freibleibend und unverbindlich. Irrtum und Zwischenverkauf bleiben vorbehalte
Lage
In einer der begehrtesten Wohnlagen im östlichen Münchner Umland präsentiert sich dieses Objekt als Rückzugsort mit hoher Wohnqualität und exzellenter Anbindung. Der Ortsteil Ottendichl der Gemeinde Haar ist geprägt von einer ruhigen sowie grünen Nachbarschaft mit überwiegend gepflegten Einfamilienhäusern. Die Umgebung...
Das Haus
Kategorie
Einfamilienhaus
Baujahr
2004
Bezug
sofort
Energie & Heizung
Warum sehe ich diese Anzeige? – Du siehst diese Anzeige basierend auf Ihrer Navigation auf unserer Website und den Suchkriterien, die du verwendet hast.
Energieausweistyp
Verbrauchsausweis
Gebäudetyp
Wohngebäude
Wesentliche Energieträger
Gas
Gültigkeit
29.11.2025 bis 28.11.2035
Effizienzklasse
D
Endenergieverbrauch
112,80 kWh/(m²·a)
Weitere Energiedaten
Energieträger
Gas
Heizungsart
Fußbodenheizung, offener Kamin
Details
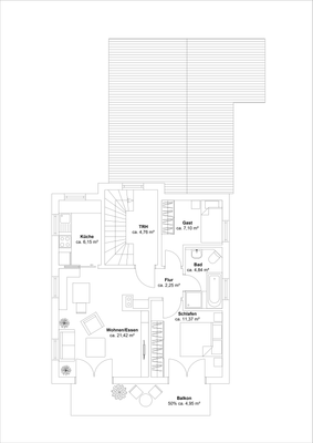
Objektbeschreibung
Das großzügige Wohnhaus präsentiert sich als äußerst vielseitige Immobilie mit unterschiedlichen Nutzungsmöglichkeiten und überzeugt durch eine durchdachte Raumaufteilung über drei Etagen. Als klassisches Einfamilienhaus mit Einliegerwohnung oder Mehrparteienhaus mit bis zu drei separaten Wohneinheiten.
Auf allen drei...
Ausstattung
Die Immobilie wurde in solider Massivbauweise aus Ziegel- und Stahlbeton errichtet und überzeugt durch eine hochwertige sowie funktionale Ausstattung. Insgesamt stehen drei voll ausgestattete Tageslichtbäder mit Badewanne, Dusche und Handtuchheizkörpern zur Verfügung, ergänzt durch ein separates Duschbad mit WC im...
Preisinformation
2 Garagenstellplätze
Weitere Informationen
Sonstiges
Das Kaufobjekt wird im Alleinauftrag von Dr. Friedlmaier Immobilien angeboten.
Haftungsausschluss: Alle Angaben in diesem Exposé basieren auf Informationen und Unterlagen Dritter. Eine Haftung für Vollständigkeit und Richtigkeit ist daher auf Vorsatz oder grobe Fahrlässigkeit beschränkt. Irrtümer und...
Anbieter der Immobilie
Dr. Friedlmaier Immobilien
Am Lilienberg 2, 81669 München
Online-ID: 2nwez5k
Referenznummer: DFI-3325
Finde Angebote wie dieses
Hier geht es zu unserem Impressum, den Allgemeinen Geschäftsbedingungen, den Hinweisen zum Datenschutz und nutzungsbasierter Online-Werbung.