
CCS Deutschland Massivhaus GmbH
Herr Reinhard Kunz
045 ···
Nr. anzeigenPreise & Kosten
Provision für Käufer
provisionsfrei
Lage
Die Immobilie befindet sich in einem gewachsenen und ruhigen Wohngebiet im Hamburger Stadtteil Hamburg-Schnelsen. Die Umgebung ist geprägt von gepflegten Einfamilienhäusern, kleinen Mehrfamilienhäusern und viel Grün – ideal für alle, die eine angenehme Wohnatmosphäre mit guter Anbindung verbinden...
Das Haus
Kategorie
Doppelhaushälfte
Baujahr
2026
Bezug
2026
Energie & Heizung
Warum sehe ich diese Anzeige? – Du siehst diese Anzeige basierend auf Ihrer Navigation auf unserer Website und den Suchkriterien, die du verwendet hast.
Weitere Energiedaten
Haustyp
KfW 55
Heizungsart
Fußbodenheizung, Luft-/Wasser-Wärmepumpe
Details
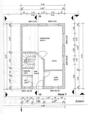
Objektbeschreibung
Haus 1:
Planen Sie mit uns für sich und Ihre Familie ihren Wohntraum in ruhiger Lage von Schnelsen.
Auf einem wunderschönen ca. 281 m² großen Grundstück entsteht Ihr Traumhaus mit ca. 112 m² Wohnfläche.
Der offene Grundriss schafft eine einladende Atmosphäre und verbindet Wohnen, Essen und Kochen auf...
Weitere Informationen
Sonstiges
Gute Gründe die für uns sprechen:
= wirtschaftlich gesundes Unternehmen
= gute alte Bau- und Handwerkskunst
= massiv - Stein auf Stein
= Bauzeitgarantie
= freie individuelle Planung Ihres Traumhauses möglich
= fachmännische Betreuung vom Kauf bis zum Einzug
= Begleitung bei allen Anträgen...
Anbieter der Immobilie
CCS Deutschland Massivhaus GmbH
Kalckreuthweg 1, 22607 Hamburg
Online-ID: 2nwdu5k
Finde Angebote wie dieses
Hier geht es zu unserem Impressum, den Allgemeinen Geschäftsbedingungen, den Hinweisen zum Datenschutz und nutzungsbasierter Online-Werbung.