
A1 Immobilien GmbH
Herrn Phillip Wenderoth
+49 ···
Nr. anzeigenPreise & Kosten
Provision für Käufer
2,62 % inkl. MwSt.
Wir weisen der guten Ordnung halber darauf hin, dass im Falle eines Zustandekommens eines Kaufvertrages an uns eine Vermittlungsprovision in Höhe von 2,62 % vom Kaufpreis inkl. 19 % MwSt. zu entrichten ist.
Lage
Die Immobilie befindet sich in Böhlitz-Ehrenberg am westlichen Stadtrand von Leipzig, in einem ruhig gelegenen und beliebten Wohngebiet mit fast ländlichem Charakter. An Böhlitz-Ehrenberg grenzt im Norden der Auwald, der zahlreiche Erholungsmöglichkeiten bietet. Im Stadtteil gibt es Kindertagesstätten, Schulen...
Das Haus
Kategorie
Einfamilienhaus
Baujahr
2008
Bezug
sofort
Energie & Heizung
Warum sehe ich diese Anzeige? – Du siehst diese Anzeige basierend auf Ihrer Navigation auf unserer Website und den Suchkriterien, die du verwendet hast.
Energieausweistyp
Verbrauchsausweis
Gebäudetyp
Wohngebäude
Wesentliche Energieträger
Wärmepumpe
Gültigkeit
25.10.2023 bis 25.10.2033
Effizienzklasse
A
Endenergieverbrauch
39,20 kWh/(m²·a) - Warmwasser enthalten
Weitere Energiedaten
Haustyp
Massivhaus
Heizungsart
Fußbodenheizung, Luft-/Wasser-Wärmepumpe, offener Kamin
Details
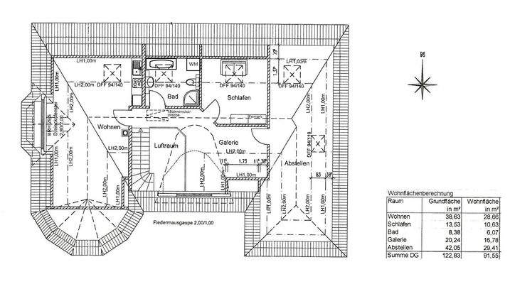
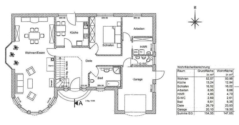
Objektbeschreibung
Von diesem Haus in einer gewachsenen und ruhigen Siedlungslage werden Sie begeistert sein. Hier müssen Sie mit Ihren Lieben nur noch einziehen und es sich gutgehen lassen. Haus und Garten sind fertig und warten auf Sie.
Das attraktive Einfamilienhaus mit Garage wurde im Jahr 2008 auf einem großzügigen Grundstück in...
Ausstattung
Bei der Ausstattung wurde viel Wert auf hohe Qualität und auf den Einsatz von hochwertigen und geschmackvollen Materialien gelegt.
- zwei hochwertige Einbauküchen mit Elektrogeräten
- Bad im Erdgeschoss mit Wanne, Eckdusche, Handtuchheizkörper, Waschbecken und WC
- Gäste-WC mit Urinal
- Bad im Dachgeschoss...
Weitere Informationen
Sonstiges
Ein Energieausweis ist vorhanden.
Energieausweistyp: Verbrauchsausweis
Gebäudejahr: 2008
Baujahr Anlagentechnik: 2020
Endenergiekennwert: 39,2 kWh/(m²*a)
Energieeffizienzklasse: A
Energieverbrauch für Warmwasser enthalten: ja
Wesentlicher Energieträger: Strom
Ausgestellt am...
Anbieter der Immobilie
Online-ID: 2nwds5d
Referenznummer: 300802#8X03y
Finde Angebote wie dieses
Hier geht es zu unserem Impressum, den Allgemeinen Geschäftsbedingungen, den Hinweisen zum Datenschutz und nutzungsbasierter Online-Werbung.