
IMMO-CONCEPTS GmbH
Herr Yannik Neumann
040 ···
Nr. anzeigenPreise & Kosten
Provision für Käufer
provisionsfrei
Lage
Das Grundstück in Scharbeutz/Haffkrug bietet eine absolut erstklassige Lage, zweite Strandreihe, nur etwa 300 Meter vom beliebten Ostseestrand entfernt. Die feinsandige Küste ist in wenigen Gehminuten erreichbar und lädt zu entspannten Strandspaziergängen, Wassersport und unvergesslichen Sonnenuntergängen ein. Scharbeutz und...
Das Haus
Kategorie
Doppelhaushälfte
Energie & Heizung
Warum sehe ich diese Anzeige? – Du siehst diese Anzeige basierend auf Ihrer Navigation auf unserer Website und den Suchkriterien, die du verwendet hast.
Energieausweis: für diesen Gebäudetyp nicht notwendig
Details
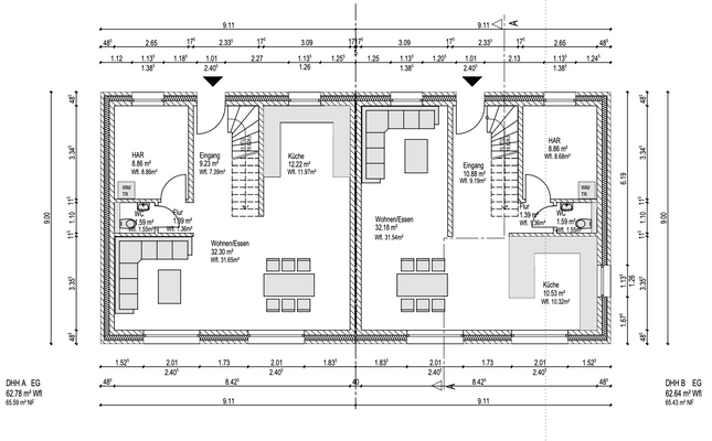
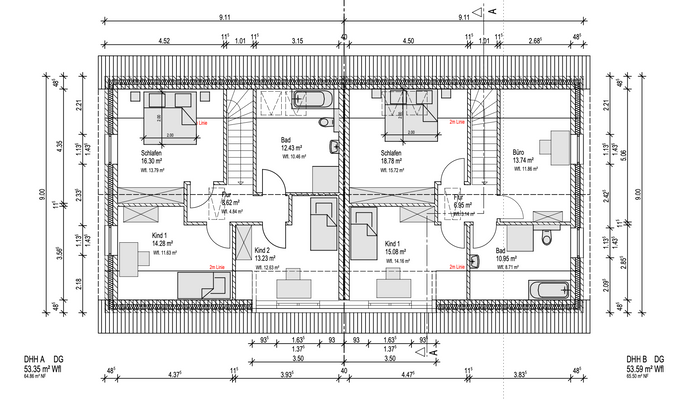
Objektbeschreibung
Volltreffer! Sie suchen einen Bauplatz für eine Doppelhaushälfte mit Süd-West-Garten in ruhiger Lage nahe des Strandes von Scharbeutz-Haffkrug?
Was wollen Sie mehr? PKW-Stellplatz vor der Tür, ein Grundstück groß genug zum Spielen, Grillen und feiern, aber pflegeleicht zu unterhalten? Das Ganze neugebaut, also auf dem...
Ausstattung
Hier einige Highlights
__Garantierte Bauzeit - 9 Monate
__KfW 40 "Klimafreundliches Wohngebäude"
__Energieeffizientes Heizen
__Wohlige Wärme - Luftwasserwärmepumpe mit Fußbodenheizung
__Angenehmes Klima - Zentrale Lüftungsanlage mit Wärmerückgewinnung
__Top-...
Preisinformation
2 Stellplätze
Weitere Informationen
Stichworte
Stellplatz vorhanden, Nutzfläche: 38,00 m², Anzahl der Schlafzimmer: 3, Anzahl der Badezimmer: 1, Anzahl Balkone: 1, Balkon-Terrassen-Fläche: 8,00 m², Bundesland: Schleswig-Holstein, Distanz zum Flughafen: 44.59, Distanz zum Hauptbahnhof: 3.78, Distanz zum Bus: 0.35
Anbieter der Immobilie
IMMO-CONCEPTS GmbH
Eidelstedter Platz 6b, 22523 Hamburg / Eidelstedt
Online-ID: 2nwd45q
Referenznummer: IC-1428-E
Finde Angebote wie dieses
Hier geht es zu unserem Impressum, den Allgemeinen Geschäftsbedingungen, den Hinweisen zum Datenschutz und nutzungsbasierter Online-Werbung.