

Grundstücks- und Immobilienservice
Herr Frank Rostowski
035 ···
Nr. anzeigenPreise & Kosten
Kaution
600,00
Warum sehe ich diese Anzeige? – Du siehst diese Anzeige basierend auf Ihrer Navigation auf unserer Website und den Suchkriterien, die du verwendet hast.
Lage
Die Lessingstadt Kamenz liegt in der westlichen Oberlausitz am Fuße des Hutberges im Naturraum Westlausitzer Hügel- und Bergland. Die Gegend bildet die Nahtstelle zwischen der flachen Teichlandschaft im Norden, eine der größten Wasserflächen ' der Deutschbaselitzer Großteich ' befindet sich auf Kamenzer Gebiet, und dem...
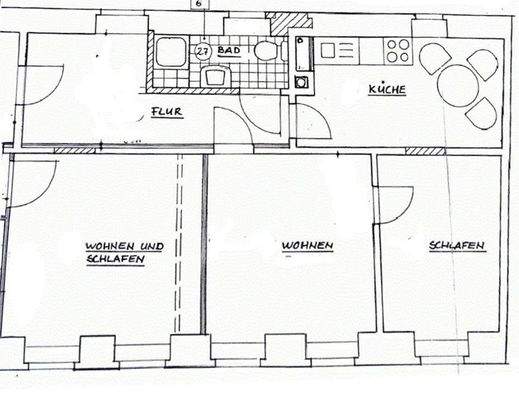
Die Wohnung
Bezug
sofort
Wohnanlage
Energie & Heizung
Warum sehe ich diese Anzeige? – Du siehst diese Anzeige basierend auf Ihrer Navigation auf unserer Website und den Suchkriterien, die du verwendet hast.
Energieausweistyp
Verbrauchsausweis
Gebäudetyp
Wohngebäude
Baujahr laut Energieausweis
1900
Wesentliche Energieträger
Gas
Gültigkeit
10.05.2023 bis 09.06.2033
Effizienzklasse
E
Endenergieverbrauch
142,30 kWh/(m²·a) - Warmwasser enthalten
Weitere Energiedaten
Energieträger
Gas
Heizungsart
Etagenheizung
Details
Objektbeschreibung
In der charmanten Stadt Kamenz wartet eine gemütliche Etagenwohnung auf dich, ideal für junge Menschen, die nach einem eigenen Zuhause suchen. Die Wohnung hat eine Wohnfläche von etwa 51,50 Quadratmetern und ist somit perfekt für Singles oder Paare. Sie ist für den Verwendungszweck Wohnen konzipiert und kann bereits ab dem 1...
Ausstattung
Kabel TV vorhanden! Super Singlewohnung im alten Stadtkern
Preisinformation
Nettokaltmiete: 300,00 EUR
Weitere Informationen
Sonstiges
BODENBELAG:
Laminat
BAD:
Bad mit Fenster, Bad mit Dusche, Boden: Fliesen/Stein
KÜCHE:
Küche mit Fenster, Boden: Fliesen/Stein, Anschluss für Elektroherd,
WASCHEN:
Trockenraum, Anschluss im Bad
WEITERES:
Etagenheizung (Gas), Abstell: Keller
Es wird keine Haftung für die Angaben im...
Anbieter der Immobilie

Online-ID: 2nwa557
Referenznummer: 2026-0422
Finde Angebote wie dieses
Hier geht es zu unserem Impressum, den Allgemeinen Geschäftsbedingungen, den Hinweisen zum Datenschutz und nutzungsbasierter Online-Werbung.