

immobilienteam donauwald
Herr Jürgen Holzapfel
+49 ···
Nr. anzeigenPreise & Kosten
Provision für Käufer
3,57% inkl. gesetzl. MwSt.
Lage
Zwiesel liegt am Zusammenfluss des Großen und des Kleinen Regens zum Schwarzen Regen, in einem weitläufigen Talkessel, am Fuß der Waldberge des Hinteren Bayerischen Waldes (Großer Arber, 1456 m; Großer Falkenstein, 1315 m; Kiesruck, 1265 m). Ca. 10 km nordöstlich der Kreisstadt Regen, 35 Kilometer von Deggendorf, 30 Kilometer...
Das Haus
Kategorie
Mehrfamilienhaus
Baujahr
1977
Energie & Heizung
Warum sehe ich diese Anzeige? – Du siehst diese Anzeige basierend auf Ihrer Navigation auf unserer Website und den Suchkriterien, die du verwendet hast.
Energieausweistyp
Bedarfsausweis
Gebäudetyp
Wohngebäude
Baujahr laut Energieausweis
2018
Wesentliche Energieträger
OEL
Gültigkeit
bis 24.09.2033
Effizienzklasse
E
Endenergiebedarf
151,70 kWh/(m²·a)
Weitere Energiedaten
Energieträger
Öl
Heizungsart
Zentralheizung
Details
Objektbeschreibung
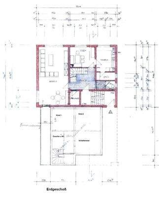
Dieses Mehrfamilienhaus befindet sich in ruhiger Wohnlage der Stadt Zwiesel und bietet vielfältige Nutzungsmöglichkeiten, sowohl zur Kapitalanlage als auch zur Eigennutzung.
Das ursprüngliche Wohnhaus wurde im Jahr 1952 in massiver Bauweise mit Erd-, Dach- und Kellergeschoss auf einem 801 m² großen Erbpachtgrundstück...
Ausstattung
Die Wohnung wird derzeit von den Eigentümern bewohnt und nach Absprache frei.
Die Dachgeschosswohnung mit ca. 79 m²Wohnfläche umfasst eine Küche, ein Esszimmer, ein Schlafzimmer, ein großes Wohnzimmer und ein Duschbad. Zwei Balkone (Ost und West) sorgen für angenehme Lichtverhältnisse.
Das Dachgeschoss ist...
Preisinformation
1 Carportplatz
2 Stellplätze
2 Garagenstellplätze
Weitere Informationen
Sonstiges
BITTE BEACHTEN SIE:
Anfragen können nur mit den Angaben der nachfolgenden Daten bearbeitet werden!
- VOLLSTÄNDIGE ADRESSE
- TELEFONNUMMER
- EMAIL-ADRESSE
Sofern das Objekt provisionspflichtig angeboten wird, verpflichtet sich der Käufer BEIM KAUF, an die Makler Firma "immobilienteam donauwald"...
Dokumente
Anbieter der Immobilie
immobilienteam donauwald
Ringstraße 14, 94234 Viechtach

Online-ID: 2nw5a5w
Referenznummer: JH-2026-112
Finde Angebote wie dieses
Hier geht es zu unserem Impressum, den Allgemeinen Geschäftsbedingungen, den Hinweisen zum Datenschutz und nutzungsbasierter Online-Werbung.