TK Immobilienverwaltung GmbH

Frau Steffi Kohlberg

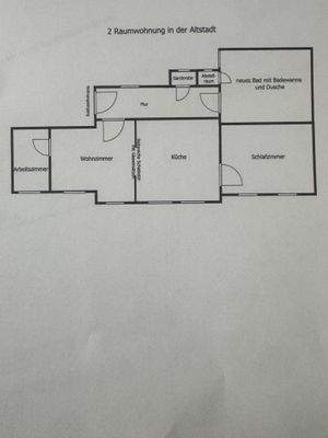
liebevoll sanierte 3 Raum WE Altstadt Weimar

€ 795
Kaltmiete zzgl. NK
74 m²
Wohnfläche ca.
3
Zimmer

Der Anbieter dieses Objekts hat gegenüber der AVIV Germany GmbH als Betreiber dieses Online-Marktplatzes erklärt, nicht als Unternehmer im Sinne des § 1 KSchG zu handeln. Die im Verbraucherschutzrecht der Union verankerten Verbraucherrechte (insbesondere Informationspflichten und Rücktritts- bzw. Widerrufsrechte) finden auf den Vertrag zwischen dem Anbieter des Objekts und Ihnen (dem Interessenten) keine Anwendung.

Gewerblicher Anbieter

Der Anbieter dieses Objekts hat gegenüber der AVIV Germany GmbH als Betreiber dieses Online-Marktplatzes erklärt, als Unternehmer im Sinne des § 1 KSchG zu handeln.

AdresseStraße nicht freigegeben
99423 Weimar 
(Altstadt)
Auf Karte ansehen

Preise & Kosten

Kaltmiete € 795 Nebenkosten € 150 Heizkosten nicht in Nebenkosten enthalten Warmmiete € 945

Kaution

945

Lage

Im historischen Stadtgebiet von Weimar, am nördlichen Rand der Altstadt, erstreckt sich das Anwesen in der Grabenstraße. Diese Straße folgt dem Verlauf der einstigen mittelalterlichen Stadtbefestigung und verleiht dem Gebiet einen einzigartigen Charakter. Zwischen Goetheplatz und Unterem Graben spielt die Straße eine zentrale...

Mehr anzeigen

Die Wohnung

Wohnungslage

1. Geschoss

Bezug

01.06.2026

  • Bad mit Fenster und Dusche
  • WG-geeignet
  • Zustand: renoviert / saniert
  • Haustiere erlaubt

Energie & Heizung

info

Energieausweis: für diesen Gebäudetyp nicht notwendig

Weitere Energiedaten

Energieträger

Gas

Heizungsart

Etagenheizung

Details

Ausstattung

neu komplett sanierte Wohnung

Weitere Informationen

Im Mietpreis ist Strom und Gas nicht enthalten

Anbieter der Immobilie

Partner

TK Immobilienverwaltung GmbH

August-Bebel-Str. 5, 07743 Jena

user

Frau Steffi Kohlberg

Dein Ansprechpartner

Anbieter-Website Anbieter-Profil Anbieter-Impressum

Online-ID: 2nw4r5r

Finde Angebote wie dieses

imageimageimage

Hier geht es zu unserem Impressum, den Allgemeinen Geschäftsbedingungen, den Hinweisen zum Datenschutz und nutzungsbasierter Online-Werbung.