

Immobilienservice Giera
Herr Harald Giera
+49 ···
Nr. anzeigenPreise & Kosten
Kaution
2.000,00
Provision für Mieter
3,57 Netto-Monatsmiete(n) inkl. MwSt.
Warum sehe ich diese Anzeige? – Du siehst diese Anzeige basierend auf Ihrer Navigation auf unserer Website und den Suchkriterien, die du verwendet hast.
Lage
Das Büro liegt in einer sehr schönen Lage im Gewerbegebiet St.-Georgen. Verschiedenste Einkaufsmöglichkeiten sowie die nächste Bushaltestelle sind unmittelbar in der Nähe.
Entfernungen:
Autobahn: ca. 2 Autominuten
Universität: ca. 5 Autominuten ca. 20 Fahrradminuten
Lebensmittel: ca. 5 Gehminuten
Büro-/Praxisfläche
Baujahr
1971
Bezug
sofort
Derzeitige Nutzung
frei
Geschoss
Erdgeschoss
Energie & Heizung
Warum sehe ich diese Anzeige? – Du siehst diese Anzeige basierend auf Ihrer Navigation auf unserer Website und den Suchkriterien, die du verwendet hast.
Wärme
Energieausweistyp
Verbrauchsausweis
Gebäudetyp
Nicht-Wohngebäude
Wesentliche Energieträger
Gas
Gültigkeit
26.07.2021 bis 27.07.2031
Endenergieverbrauch (Wärme)
176,30 kWh/(m²·a)
Details
Objektbeschreibung
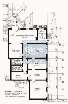
Die im Erdgeschoss (Hochparterre) gelegenen Büroflächen befindet sich in einem gepflegten Zustand, insgesamt sind drei Nutzer im Haus gegeben. Die Büroflächen selbst verfügen über einen Eingangsbereich, 4 Büroräume, einen Besprechungraum, einem Küchenraum samt Einbauküche und Damen- und Herren WC-Anlagen.
Die ca. 191...
Ausstattung
- komplette Beleuchtung in Odenwalddecke
- Serverschrank vorhanden
- verschiedene Einbauschränke
- Personalküche
- teils Fliesen und Kunststoffböden
- uvm.
Preisinformation
3 Stellplätze, Miete je: 15,00 EUR
Weitere Informationen
Sonstiges
Weitere Informationen erhalten Sie von Ihrem Ansprechpartner.
derzeitige Nutzung
frei
Anbieter der Immobilie

Online-ID: 2nw4657
Referenznummer: 00007-1.EH2
Finde Angebote wie dieses
Hier geht es zu unserem Impressum, den Allgemeinen Geschäftsbedingungen, den Hinweisen zum Datenschutz und nutzungsbasierter Online-Werbung.