
Class Hausbau + Immobilien GmbH & Co. KG
Herr Rainer Class
004 ···
Nr. anzeigenPreise & Kosten
Provision für Käufer
4,76 % inkl. MwSt. inkl. MwSt.
Lage
Sie wohnen in ruhiger Höhenlage von Winnenden mit wunderschöner Aussicht. Die Stadtmitte von Winnenden ist in ca. 15 Minuten zu Fuß oder bequem mit dem Fahrrad erreichbar. Auch der S-Bahnhof, Einkaufsmöglichkeiten, Banken und Arztpraxen sind fußläufig erreichbar. Die außerordentlich gute Verkehrsanbindung über die...
Das Haus
Kategorie
Mehrfamilienhaus
Baujahr
1969
Bezug
nach Absprache
Derzeitige Nutzung
vermietet
Energie & Heizung
Warum sehe ich diese Anzeige? – Du siehst diese Anzeige basierend auf Ihrer Navigation auf unserer Website und den Suchkriterien, die du verwendet hast.
Energieausweistyp
Bedarfsausweis
Gebäudetyp
Wohngebäude
Baujahr laut Energieausweis
1967
Wesentliche Energieträger
OEL
Gültigkeit
28.06.2025 bis 27.06.2035
Effizienzklasse
G
Endenergiebedarf
219,90 kWh/(m²·a)
Weitere Energiedaten
Energieträger
Öl
Details
Objektbeschreibung
Attraktives Dreifamilienhaus in bevorzugter Höhenlage - gepflegt, solide und vielseitig nutzbar.
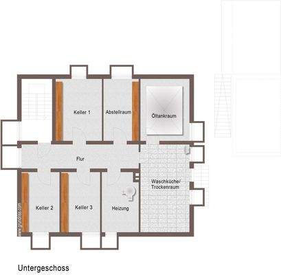
Das Untergeschoss bietet reichlich Stauraum mit drei separaten Kellerräumen, einem allgemeinen Abstellraum, einer Waschküche mit direktem Zugang in den Garten (inklusive Katzenklappe), einem Heizraum sowie dem Öltankraum...
Ausstattung
Allgemeine Ausstattung:
Das gepflegte Treppenhaus verfügt über beigen Kunststeinbelag, eingefärbten Kunstharzputz und ein Stahlgeländer mit Kunststoffhandlauf. Glasbausteinfenster auf der Südseite sorgen für Tageslicht. Die hochwertige Eingangstür mit Dreifachverriegelung, Sicherheitsverschluss, automatischem Türschloss...
Preisinformation
1 Stellplatz
1 Garagenstellplatz
Weitere Informationen
Sonstiges
Sämtliche in diesem Exposé enthaltenen Angaben (Berechnungen, Grundrisse etc.) basieren auf den uns erteilten Auskünften. Die Angaben wurden im Einzelnen nicht überprüft und eine Kontrolle der Wohnfläche und dem Baujahr ist nicht erfolgt. Eine Haftung unsererseits für die Richtigkeit dieser Angaben ist...
Anbieter der Immobilie
Online-ID: 2nw3r5r
Referenznummer: 2025-104
Finde Angebote wie dieses
Hier geht es zu unserem Impressum, den Allgemeinen Geschäftsbedingungen, den Hinweisen zum Datenschutz und nutzungsbasierter Online-Werbung.