
Rosenhof Immobilien & Capital- vermittlung GmbH
Herr Jens Hencke
Kontaktiere den Anbieter schriftlich, es ist keine Telefonnummer hinterlegt.
Preise & Kosten
Kaution
24.000,00 EUR
Provision für Mieter
2,38% inkl. 19% MwSt.
Warum sehe ich diese Anzeige? – Du siehst diese Anzeige basierend auf Ihrer Navigation auf unserer Website und den Suchkriterien, die du verwendet hast.
Lage
Makro Lage:
Hannover - Stadt an der Leine - hat ca. 545.000 Einwohner und bildet seit 1946 die Landeshauptstadt von Niedersachsen. Zuvor gab es eine enge Historie zu Großbritannien. Von 1714 bis 1837 bestand die Personalunion zwischen Großbritannien und Hannover, wonach Hannovers Monarchen auch gleichzeitig die Könige...
Die Industriefläche
Kategorie
Lagerhalle
Baujahr
1965
Bezug
Sofort
Energie & Heizung
Warum sehe ich diese Anzeige? – Du siehst diese Anzeige basierend auf Ihrer Navigation auf unserer Website und den Suchkriterien, die du verwendet hast.
Wärme
Strom
Energieausweistyp
Verbrauchsausweis
Gebäudetyp
Nicht-Wohngebäude
Wesentliche Energieträger
Fernwärme
Gültigkeit
07.02.2025 bis 06.02.2035
Endenergieverbrauch (Wärme)
83,20 kWh/(m²·a)
Endenergieverbrauch (Strom)
27,70 kWh/(m²·a)
Weitere Energiedaten
Energieträger
Fernwärme
Details
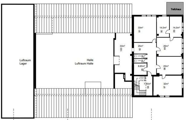
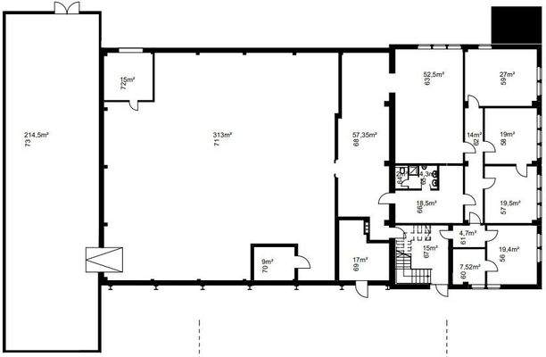
Objektbeschreibung
Willkommen am starken Wirtschaftsstandort Hannover!
Sie suchen einen Verkehrsgünstig gelegenen Standort?
Sie suchen einen Standort innerhalb einer äußerst prosperierenden Umgebung?
Sie suchen einen Standort wo Sie eine großzügige Büroflächemit einer ordentlichen Lager-/ Produktionsfläche kombiniert...
Weitere Informationen
Stichworte
Stellplatz vorhanden, Lagerfläche: 1.081,00 m², Gesamtfläche: 1.081,00 m²
Anbieter der Immobilie
Herr Jens Hencke
Dein Ansprechpartner
Kontaktiere den Anbieter schriftlich, es ist keine Telefonnummer hinterlegt.
Online-ID: 2nw3d5a
Referenznummer: 129944267
Finde Angebote wie dieses
Hier geht es zu unserem Impressum, den Allgemeinen Geschäftsbedingungen, den Hinweisen zum Datenschutz und nutzungsbasierter Online-Werbung.