

maklerlos-verkaufen.de
Frau Ines Biedermann
030 ···
Nr. anzeigenPreise & Kosten
Provision für Käufer
provisionsfrei
Lage
Buschdorf ist ein ruhiger Ortsteil der Gemeinde Zechin im Oderbruch. Die Umgebung ist geprägt von weiter Landschaft, Natur und kleinen Dörfern.
Ein besonderer Treffpunkt im Ort ist der historische Feldbackofen, der in den Sommermonaten regelmäßig genutzt wird.
Einkaufsmöglichkeiten, Schulen, Kitas und ärztliche...
Das Haus
Kategorie
Einfamilienhaus
Baujahr
2002
Bezug
sofort
Derzeitige Nutzung
frei
Energie & Heizung
Warum sehe ich diese Anzeige? – Du siehst diese Anzeige basierend auf Ihrer Navigation auf unserer Website und den Suchkriterien, die du verwendet hast.
Energieausweistyp
Bedarfsausweis
Gebäudetyp
Wohngebäude
Baujahr laut Energieausweis
2002
Wesentliche Energieträger
Gas
Gültigkeit
10.03.2026 bis 09.03.2036
Effizienzklasse
D
Endenergiebedarf
126,80 kWh/(m²·a)
Weitere Energiedaten
Energieträger
Gas
Heizungsart
Zentralheizung
Details
Objektbeschreibung
maklerlos-verkaufen.de
Provisionsfrei kaufen – bei dieser Immobilie entfällt die sonst übliche Maklerprovision vollständig.
Fordern Sie jetzt die 360°-Besichtigung, das Video und das vollständige Exposé an.
So erhalten Sie alle Informationen und können sich bereits vor einer Besichtigung ein umfassendes Bild...
Ausstattung
Erdgeschoss
+ Wohnzimmer mit Zugang zur Terrasse
+ separate Küche
+ Badezimmer
+ Hauswirtschaftsraum / Abstellfläche
+ zwei Terrassen am Haus
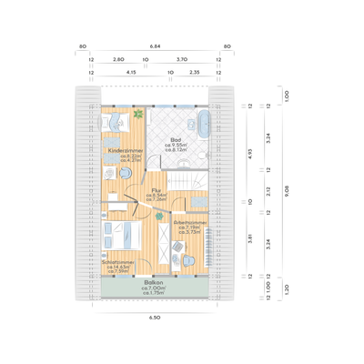
Dachgeschoss
+ Schlafzimmer mit Zugang zum Balkon
+ 2. Zimmer (z. B. Kinder-, Arbeits- oder Gästezimmer)
+ 3. Zimmer derzeit mit kleiner...
Weitere Informationen
Diese Immobilie wird über maklerlos-verkaufen.de provisionsfrei angeboten.
Die sonst übliche Maklerprovision entfällt vollständig.
Fordern Sie jetzt das vollständige Exposé sowie die 360°-Besichtigung und das Video an.
Anbieter der Immobilie
maklerlos-verkaufen.de
Petersdorfer Str. 59, 17268 Templin

Online-ID: 2nvw85w
Referenznummer: MV 2026-12
Finde Angebote wie dieses
Hier geht es zu unserem Impressum, den Allgemeinen Geschäftsbedingungen, den Hinweisen zum Datenschutz und nutzungsbasierter Online-Werbung.