
Dück Immobilien
Frau Irina Dück
004 ···
Nr. anzeigenPreise & Kosten
Provision für Käufer
3,57 %
Lage
Das 8 Familienhaus befindet sich in einer beliebten Lage von Bad Hersfeld. Hier erreichen Sie in nur 5 Minuten Fahrzeit die Innenstadt und haben direkten Zugang zu attraktiven Einkaufsmöglichkeiten, sämtliche Einrichtungen für die Gesundheitsvorsorge. Kindergarten, Schule, Rewe und Edeka befinden sich in der Nähe. Auch...
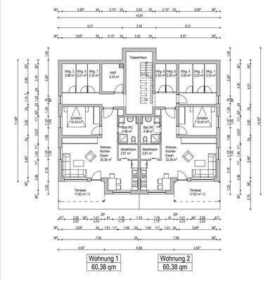
Die Wohnung
Wohnungslage
2. Geschoss
Wohnanlage
Energie & Heizung
Warum sehe ich diese Anzeige? – Du siehst diese Anzeige basierend auf Ihrer Navigation auf unserer Website und den Suchkriterien, die du verwendet hast.
Energieausweistyp
Bedarfsausweis
Gebäudetyp
Wohngebäude
Baujahr laut Energieausweis
2018
Wesentliche Energieträger
LUFTWP
Gültigkeit
bis 01.09.2028
Effizienzklasse
A+
Endenergiebedarf
24,60 kWh/(m²·a)
Weitere Energiedaten
Heizungsart
Fußbodenheizung, Luft-/Wasser-Wärmepumpe
Details
Objektbeschreibung
Diese moderne und gepflegte Wohnung befindet sich in einem attraktiven Achtfamilienhaus aus dem Baujahr 2018.
Die Immobilie überzeugt durch ihre zeitgemäße Architektur, eine hochwertige Ausstattung sowie einen modernen Grundriss.
Die Wohnung verfügt über eine Wohnfläche von ca. 60 m².
Herzstück der Wohnung ist...
Ausstattung
- Energiesparende 3-fach Isolierfachverglasung der Fenster
- teilweise bodentiefe Fenster
- teilweise elektr. Rolläden
- Design Fußbodenbelag
- Fußbodenheizung in kompletter Wohnung
- barrierefreie Dusche, ohne Badewanne
- Waschmaschinenanschluss in der Wohnung
- Zusätzlicher Abstellraum im Keller
-...
Preisinformation
1 Stellplatz
Weitere Informationen
Sonstiges
Die vorgenannten Angaben sollen dazu dienen, Ihnen eine Übersicht über die wesentlichen Rahmenbedingungen des Objekts zu geben.
Gerne stehen wir Ihnen für Fragen jederzeit zur Verfügung.
Unser Angebot wurde von uns aufgrund von Angaben und Unterlagen Dritter, insbesondere des Verkäufers...
Anbieter der Immobilie
Dück Immobilien
Eichhofstr. 1, 36251 Bad Hersfeld
Online-ID: 2nvw35x
Referenznummer: 434
Finde Angebote wie dieses
Hier geht es zu unserem Impressum, den Allgemeinen Geschäftsbedingungen, den Hinweisen zum Datenschutz und nutzungsbasierter Online-Werbung.