HBI-Immobilienvertriebs GmbH

Frau Viktoria Schunk

Huchting / Attraktive 3-Zimmer-Wohnung in ruhiger grüner Lage

€ 189.000
Kaufpreis
88 m²
Wohnfläche ca.
3
Zimmer

Der Anbieter dieses Objekts hat gegenüber der AVIV Germany GmbH als Betreiber dieses Online-Marktplatzes erklärt, nicht als Unternehmer im Sinne des § 1 KSchG zu handeln. Die im Verbraucherschutzrecht der Union verankerten Verbraucherrechte (insbesondere Informationspflichten und Rücktritts- bzw. Widerrufsrechte) finden auf den Vertrag zwischen dem Anbieter des Objekts und Ihnen (dem Interessenten) keine Anwendung.

Gewerblicher Anbieter

Der Anbieter dieses Objekts hat gegenüber der AVIV Germany GmbH als Betreiber dieses Online-Marktplatzes erklärt, als Unternehmer im Sinne des § 1 KSchG zu handeln.

AdresseStraße nicht freigegeben
28259 Bremen 
(Mittelshuchting)
Auf Karte ansehen

Preise & Kosten

Kaufpreis € 189.000 Hausgeld € 446

Provision für Käufer

3,57 % inkl. MwSt.

Lage

Huchting liegt auf der linken Seite der Weser. Nachbarstadtteil ist die Neustadt. Der Ort grenzt im Süden an die Gemeinde Stuhr und im Westen an Delmenhorst. Der Stadtteil besteht heute aus den vier Ortsteilen Kirchhuchting, Mittelshuchting, Sodenmatt und Grolland.

Die Immobilie befindet sich in einer...

Mehr anzeigen

Die Wohnung

Derzeitige Nutzung

vermietet

  • Bad mit Fenster und Dusche
  • Balkon
  • Böden: Fliesenboden, Laminat
  • Weitere Räume: Kelleranteil, Abstellraum

Wohnanlage

  • Baujahr: 1970

Energie & Heizung

A+
A
B
C
D
E
F
G
H
0 25 50 75 100 125 150 175 200 225 250 +

Energieausweistyp

Verbrauchsausweis

Gebäudetyp

Wohngebäude

Wesentliche Energieträger

Öl

Gültigkeit

20.03.2018 bis 20.03.2028

Effizienzklasse

D

Endenergieverbrauch

123,00 kWh/(m²·a)

Weitere Energiedaten

Energieträger

Öl

Details

Objektbeschreibung

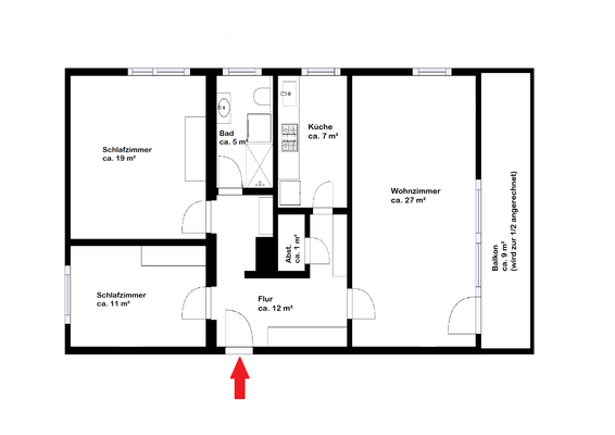
Die hier angebotene, großzügige 3-Zimmer-Wohnung befindet sich im Erdgeschoss eines gepflegten Mehrparteienhauses in Bremen-Huchting und umfasst ca. 88 m² Wohnfläche.

Von dem zentralen Flur aus sind alle Zimmer begehbar. Die Wohnung verfügt über zwei Schlafzimmer, eine Küche sowie ein großzügiges Wohnzimmer mit Zugang...

Mehr anzeigen

Ausstattung

- 3 Zimmer
- Balkon
- Kellerraum
- Waschmaschinenanschluss
- Tageslichtduschbad

Weitere Informationen

Stichworte
Nutzfläche: 9,00 m², Anzahl der Schlafzimmer: 2, Anzahl der Badezimmer: 1, Anzahl Balkone: 1, Balkon-Terrassen-Fläche: 9,00 m², Bundesland: Bremen

Anbieter der Immobilie

Partner

HBI-Immobilienvertriebs GmbH

Schwachhauser Heerstraße 144, 28213 Bremen

user

Frau Viktoria Schunk

Dein Ansprechpartner

Anbieter-Website Anbieter-Profil Anbieter-Impressum

Online-ID: 2nvvh55

Referenznummer: 130001757

Finde Angebote wie dieses

imageimageimage

Hier geht es zu unserem Impressum, den Allgemeinen Geschäftsbedingungen, den Hinweisen zum Datenschutz und nutzungsbasierter Online-Werbung.