

Martens & Kühl GmbH
Herr Felix Kühl
041 ···
Nr. anzeigenPreise & Kosten
Provision für Käufer
7,14 % des Kaufpreises inkl. MwSt.
Lage
Diese Immobilie befindet sich im Gewerbegebiet Ramskamp im Osten von Elmshorn. Die Anbindung an die Autobahn A23 ist direkt gegeben. Zudem erreicht man den Bahnhof und das Zentrum von Elmshorn schnell. In direkter Umgebung befindet sich zudem eine Bushaltestelle.
Im Gewerbegebiet sind diverse renommierte Firmen aus...
Die Industriefläche
Kategorie
Lagerhalle
Baujahr
1979
Bezug
01.09.2026
Energie & Heizung
Warum sehe ich diese Anzeige? – Du siehst diese Anzeige basierend auf Ihrer Navigation auf unserer Website und den Suchkriterien, die du verwendet hast.
Wärme
Strom
Energieausweistyp
Verbrauchsausweis
Gebäudetyp
Nicht-Wohngebäude
Wesentliche Energieträger
GAS
Gültigkeit
02.02.2026 bis 02.02.2036
Endenergieverbrauch (Wärme)
79,50 kWh/(m²·a)
Endenergieverbrauch (Strom)
13,30 kWh/(m²·a)
Weitere Energiedaten
Energieträger
Gas
Details
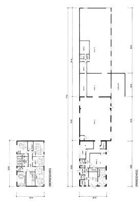
Objektbeschreibung
Zum Verkauf steht eine vielseitige Gewerbeimmobilie mit Hallenflächen, Büros und zusätzlichen Außenbereichen. Die Immobilie ist aktuell noch vermietet, wird aber frei geliefert.
Das Gebäude teilt sich auf in mehrere Bereiche. Vorne auf dem Grundstück steht ein zweistöckiges Bürogebäude mit einladendem Eingangsbereich...
Ausstattung
- Gewerbeimmobilie für unterschiedliche Nutzungsarten
- Bürogebäude über zwei Etagen
- 8 Räume, die als Büros oder Besprechungszimmer genutzt werden können
- Chef-Büro mit eigenem WC
- Getrennte Damen- und Herren-WCs auf beiden Ebenen
- Pantry-Küchen auf beiden Ebenen
- Zusätzliche Räume für Server, Heizung...
Preisinformation
12 Stellplätze
Weitere Informationen
Stichworte
Lagerfläche: 864,67 m², Gesamtfläche: 1.262,77 m², Bürofläche: 398,10 m², Distanz zum Flughafen: 31.50, Distanz zum Hauptbahnhof: 3.50, Distanz zur Autobahn: 1.40, Distanz zu U-/S-Bahn: 15.50, Distanz zum Bus: 0.20, Distanz vom Zentrum: 3.00
Anbieter der Immobilie
Martens & Kühl GmbH
Großer Wulfhagen 25, 25436 Uetersen

Online-ID: 2nvtn5d
Referenznummer: 7423
Finde Angebote wie dieses
Hier geht es zu unserem Impressum, den Allgemeinen Geschäftsbedingungen, den Hinweisen zum Datenschutz und nutzungsbasierter Online-Werbung.