

EDE INVEST GmbH & Co. KG
Frau Susanne Dettinger-Klemm
+49 ···
Nr. anzeigenPreise & Kosten
Provision für Käufer
2,38 % inkl. MwSt. (2,00 % netto) inkl. MwSt.
Lage
Südwestlich von München im Fünf-Seen-Land Breitbrunn, ein Gemeindeteil von Herrsching am Ammersee im oberbayerischen Landkreis Starnberg. Vom See bis hinauf zur Straße nach Inning sind die Häuserreihen zwischen den Bio-Obstplantagen wie Treppenstufen angelegt. Breitbrunn hat eine eigene Dampfer-Anlegestelle, eine große...
Das Haus
Kategorie
Villa
Baujahr
2025
Energie & Heizung
Warum sehe ich diese Anzeige? – Du siehst diese Anzeige basierend auf Ihrer Navigation auf unserer Website und den Suchkriterien, die du verwendet hast.
Energieausweis: für diesen Gebäudetyp nicht notwendig
Details
Objektbeschreibung
Atemberaubend sind die Aussichten von Ihrem zukünftigen Zuhause oberhalb des Ammersees südlich von München im Fünf-Seen-Land. Zum Verkauf kommt ein ca. 560 m² großes Grundstück in einer Villenkolonie von Breitbrunn, gleich in der Nähe einer berühmten deutschen Sängerin. Vom Architekten geplant und genehmigt ist bereits eine...
Ausstattung
- Baugenehmigung liegt bereits vor
- Traumhafte Ausblicke über den Ammersee
- Sehr ruhige Wohnlage
- Hinterliegendes Grundstück in einer leichten Hanglage
- Nur ca. 5 Gehminuten zum See
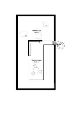
- Dachterrasse mit Seeblick möglich
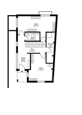
- Ca. 260 m² Wohnfläche sind...
Weitere Informationen
Sonstiges
Alle in diesem Exposé verwendeten Angaben beruhen auf Informationen von Dritten (z.B. Eigentümer, Hausverwaltung, etc.) und daher freibleibend und ohne jegliche Gewähr. Zahlenangaben sind immer als ca-Angaben zu verstehen. Irrtum, Änderungen, Zwischenverkauf oder Zwischenvermietung bleiben vorbehalten. Die...
Anbieter der Immobilie
EDE INVEST GmbH & Co. KG
Bavariaring 18, 80336 München

Online-ID: 2nvt859
Referenznummer: 3080_7
Finde Angebote wie dieses
Hier geht es zu unserem Impressum, den Allgemeinen Geschäftsbedingungen, den Hinweisen zum Datenschutz und nutzungsbasierter Online-Werbung.