
Raiffeisen Immobilien Vermittlung GmbH
Frau Sophie Kühnel
+43 ···
Nr. anzeigenPreise & Kosten
Provision für Käufer
provisionsfrei
Lage
Die Bezirkshauptstadt Hollabrunn zählt zu den bedeutendsten regionalen Zentren des Weinviertels, speziell aufgrund der guten Verkehrsanbindung, des ausgeprägten Bildungsangebotes und ebenso aufgrund des ausgezeichnetem Gesundheitsnetzwerkes.
Schule und BildungKindergarten, Weislein-Straße 17 - 900mPolytechnische Schule...
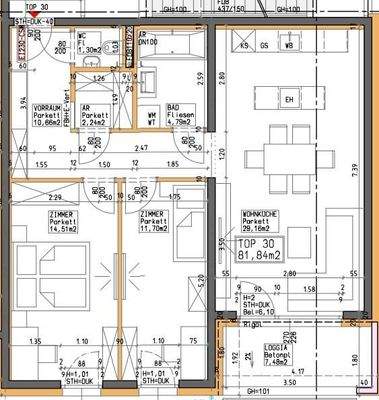
Die Wohnung
Bezug
Nach Vereinbarung
Wohnanlage
Energie & Heizung
Warum sehe ich diese Anzeige? – Du siehst diese Anzeige basierend auf Ihrer Navigation auf unserer Website und den Suchkriterien, die du verwendet hast.
Heizwärmebedarf (HWB)
28,00 kWh/(m²·a)
Gesamtenergieeffizienz (fGEE)
0,80
Weitere Energiedaten
Heizungsart
Luft-/Wasser-Wärmepumpe, Zentralheizung
Details
Objektbeschreibung
Das Projekt Sonnberg in Hollabrunn vereint moderne Architektur, energieeffiziente Bauweise und hohe Wohnqualität über Generationen hinweg. Es entstehen 32 Eigentumswohnungen mit 1-4 Zimmern. Die Wohnungen überzeugen durch lichtdurchflutete Räume, Fußbodenheizung, hochwertig verarbeitete Materialien sowie großzügige...
Ausstattung
Energieeffiziente Sole/Wasser-Wärmepumpe für HeizungFußbodenheizung in allen WohnungenZusätzliche Kühlfunktion (Temperierung im Sommer möglich 2-3 Grad Celsius)Raumthermostat mit WochenschaltprogrammDezentrale Warmwasseraufbereitung je Wohnung3-Scheiben-Isolierverglasung mit sehr guten WärmewertenKunststofffenster mit...
Preisinformation
Ein Garagen-Stellplatz im Wert von 18000,00EUR ist verpflichtend zu erwerben., 1 Garagenstellplatz
Weitere Informationen
Stichworte
Nutzfläche: 74,36 m², Anzahl der Schlafzimmer: 2, Anzahl der Badezimmer: 1, Anzahl der separaten WCs: 1, Anzahl Loggias: 1, Bundesland: Niederösterreich
Anbieter der Immobilie
Online-ID: 2nvsm5r
Referenznummer: 00010113590016
Finde Angebote wie dieses
Günstige Immobilienfinanzierung einfach online berechnen
Persönliches Angebot berechnenWarum sehe ich diese Werbung? – Du siehst diese Werbung basierend auf Deiner Navigation auf unserer Website und der von Dir verwendeten Suchkriterien.
Diese Werbung wird bezahlt von durchblicker
Werbung melden
Hier geht es zu unserem Impressum, den Allgemeinen Geschäftsbedingungen, den Hinweisen zum Datenschutz und nutzungsbasierter Online-Werbung.