
David Mergelmeyer Immobilien
Herr David Mergelmeyer
004 ···
Nr. anzeigenPreise & Kosten
Provision für Käufer
provisionsfrei
Lage
Der Gewerbehof liegt in einer ruhigen und dennoch gut erreichbaren Gegend von Huckelriede. Diese Region zeichnet sich durch ihre vielseitige Wirtschaftsstruktur und ihre Nähe zu wichtigen Verkehrsadern aus. Ein großer Pluspunkt für Unternehmen, die nach einem geeigneten Standort suchen.
Mit seiner günstigen Lage und den...
Das Grundstück
Kategorie
Gewerbepark
Details
Objektbeschreibung
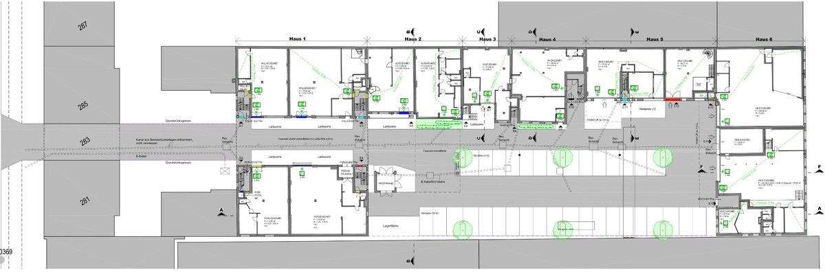
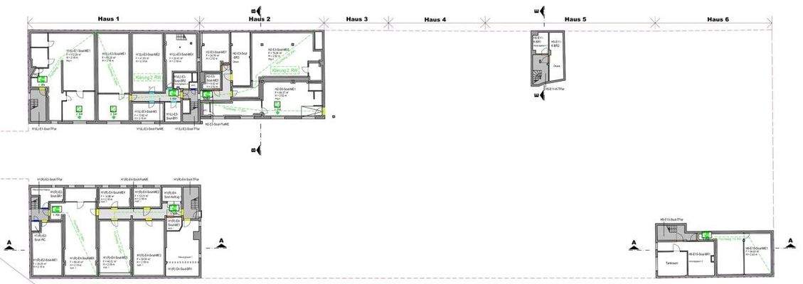
Im Bremer Stadtteil Neustadt bieten wir einen Gewerbehof mit 50 Mieteinheiten zum Kauf an.
Das ca. 4.276,5 m² große Gewerbegrundstück befindet sich in zweiter Reihe einer Hauptstraße im Ortsteil Huckelriede.
Durch eine Durchfahrt unterhalb eines Wohnhauses erreicht man das Grundstück.
Auf sechs Baukörper ist eine...
Ausstattung
A. Gewerbehof
. 4.276,5 m² Grundstücksgröße
. 5.024,3 m² Nutzfläche
. 4.427,28 m² vermietete Gewerbefläche (100 %) - 6.057 m² BGF
. 6 Baukörper
. 15 Eingänge
. 2 Lastenaufzüge
. 4 Heizungsanlagen (Öl)
. Parkplätze im Hof in ausreichender Anzahl
B. Mieteinheiten
. 50 Mieteinheiten (zum...
Weitere Informationen
Sonstiges
Alle Angaben sind ohne Gewähr und basieren ausschließlich auf Informationen, die uns von unserem Auftraggeber zur Verfügung gestellt wurden. Wir übernehmen keine Gewähr für die Vollständigkeit, Richtigkeit und Aktualität dieser Angaben.
Das Objekt wird provisionsfrei für den Käufer...
Anbieter der Immobilie
Online-ID: 2nvse5h
Referenznummer: 2025-118
Finde Angebote wie dieses
Hier geht es zu unserem Impressum, den Allgemeinen Geschäftsbedingungen, den Hinweisen zum Datenschutz und nutzungsbasierter Online-Werbung.