
ohne-makler.net - Immobilien selbst vermarkten
Privat vom Eigentümer
Kontaktiere den Anbieter schriftlich, es ist keine Telefonnummer hinterlegt.
Preise & Kosten
nicht in Warmmiete enthalten
Kaution
980,00
Warum sehe ich diese Anzeige? – Du siehst diese Anzeige basierend auf Ihrer Navigation auf unserer Website und den Suchkriterien, die du verwendet hast.
Lage
Im Herzen von Bad Düben - Alles vor der Haustür
?Die Brunnenstraße besticht durch ihre zentrale Bestlage. Hier wohnen Sie genau in der Mitte von Bad Düben, was Ihnen kurze Wege und eine erstklassige Infrastruktur garantiert:
?Einkaufen & Alltag: In nur wenigen Gehminuten erreichen Sie Supermärkte, Bäckereien und...
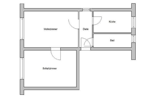
Die Wohnung
Bezug
nach Absprache
Wohnanlage
Energie & Heizung
Warum sehe ich diese Anzeige? – Du siehst diese Anzeige basierend auf Ihrer Navigation auf unserer Website und den Suchkriterien, die du verwendet hast.
Energieausweistyp
Verbrauchsausweis
Gebäudetyp
Wohngebäude
Effizienzklasse
F
Endenergieverbrauch
190,00 kWh/(m²·a)
Weitere Energiedaten
Energieträger
Gas
Heizungsart
Zentralheizung
Details
Objektbeschreibung
Erleben Sie entspanntes Wohnen in Bad Düben mit einem Rundum-Sorglos-Paket. Inmitten der Anlage erwartet Sie eine großzügige grüne Mitte, die zusammen mit dem hauseigenen Spielplatz einen perfekten Rückzugsort für Groß und Klein bietet.
?Unsere Vision & Neuheiten ab dem 01.01.2026:
Mit dem Wechsel zur neuen...
Ausstattung
Balkon, Laminat
Bemerkungen:
Modernisierter Standard für Ihren Komfort
?Wir legen Wert auf Qualität und eine solide Basis, damit Sie sich in Ihren vier Wänden von Anfang an wohlfühlen. Jede Wohnung wird in einem gepflegten, teilmodernisierten Zustand übergeben:
?Frische Optik: In den Wohnräumen wurde...
Preisinformation
1 Stellplatz, Miete: 30,00 EUR
Nettokaltmiete: 494,00 EUR
Weitere Informationen
Sonstiges
Heizungsart: Zentralheizung
Energieträger: Gas
ImmoNatic GmbH
Georg-Schumann-Str. 294
04159 Leipzig
Geschäftsführer:
Christoph Kaubitzsch
Tobias Richter
Steuer Nr: 232/111/09327
Makleranfragen nicht erwünscht. Nach § 7 UWG sind unaufgeforderte Kontaktaufnahmen durch Makler ohne...
Anbieter der Immobilie
ohne-makler.net - Immobilien selbst vermarkten
Humboldtstr. 25 A, 21509 Glinde
Privat vom Eigentümer
Dein Ansprechpartner
Kontaktiere den Anbieter schriftlich, es ist keine Telefonnummer hinterlegt.
Online-ID: 2nvrm5b
Referenznummer: 424619
Finde Angebote wie dieses
Hier geht es zu unserem Impressum, den Allgemeinen Geschäftsbedingungen, den Hinweisen zum Datenschutz und nutzungsbasierter Online-Werbung.