

Fischer Immobilien GmbH
Frau Katrin Zweck
+49 ···
Nr. anzeigenDieses Angebot ist Teil des Neubauprojekts
Wohnen an der Villa Giesecke | Neubau | KfW 55
Preise & Kosten
Provision für Käufer
provisionsfrei
Lage
Das Grundstück Hübelstraße 2a liegt im westlichen Stadtbereich von Tirschenreuth in einer ruhigen, gewachsenen Wohnlage. Die Kombination aus angenehmer Topografie, guter Infrastruktur und naturnahem Umfeld macht diese Lage besonders attraktiv.
Die Verkehrsanbindung überzeugt:
- schnelle Anbindung an die Autobahnen...
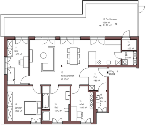
Die Wohnung
Kategorie
Penthouse
Wohnungslage
3. Geschoss (Dachgeschoss)
Bezug
Ende II. Quartal 2026 / Anfang III. Quartal 2026
Wohnanlage
Das Neubauprojekt
Energie & Heizung
Warum sehe ich diese Anzeige? – Du siehst diese Anzeige basierend auf Ihrer Navigation auf unserer Website und den Suchkriterien, die du verwendet hast.
Energieausweistyp
Bedarfsausweis
Gebäudetyp
Wohngebäude
Baujahr laut Energieausweis
2026
Wesentliche Energieträger
Strom-Mix
Gültigkeit
13.01.2026 bis 12.01.2036
Effizienzklasse
A+
Endenergiebedarf
20,20 kWh/(m²·a)
Weitere Energiedaten
Haustyp
KfW 55
Heizungsart
Fußbodenheizung, Luft-/Wasser-Wärmepumpe, Zentralheizung
Details
Objektbeschreibung
In attraktiver Wohnlage von Tirschenreuth entsteht mit "Wohnen an der Villa Giesecke" ein modernes Neubauensemble mit insgesamt 16 hochwertig ausgestatteten Wohnungen. Zeitgemäße Architektur, durchdachte Grundrisse und ein nachhaltiges Gesamtkonzept schaffen ein Wohnumfeld, das Komfort, Lebensqualität und Zukunftsfähigkeit...
Ausstattung
Die Wohnanlage überzeugt durch ein hochwertiges, harmonisch abgestimmtes Farb- und Materialkonzept mit hellen, zeitlosen Tönen. Blickdichte Paneelen an den Balkonen sowie farblich abgestimmte Fenster-, Tür- und Fassadenelemente unterstreichen den modernen Charakter.
Die Wohnungen bieten:
- helle, freundliche...
Preisinformation
1 Stellplatz, Kaufpreis für Stellplatz bereits im Gesamtkaufpreis enthalten
Weitere Informationen
Sonstiges
Farb- und Materialdarstellungen können von der finalen Bauausführung abweichen. Dargestellte Möblierungen und Einrichtungsgegenstände sind Beispielillustrationen und nicht Bestandteil des Leistungsumfangs. Änderungen aufgrund technischer, wirtschaftlicher oder behördlicher Erfordernisse bleiben vorbehalten...
Anbieter der Immobilie
Fischer Immobilien GmbH
Angerstr. 6, 95671 Bärnau

Online-ID: 2nvp753
Referenznummer: 004/G2/E4/EH15
Finde Angebote wie dieses
Hier geht es zu unserem Impressum, den Allgemeinen Geschäftsbedingungen, den Hinweisen zum Datenschutz und nutzungsbasierter Online-Werbung.