

BeSmart Immobilien e.K.
Frau Silke Treder
041 ···
Nr. anzeigenPreise & Kosten
Provision für Käufer
2,50 % inkl. MwSt. des notariell beurkundeten Kaufpreises
Lage
Die angebotene Doppelhaushälfte befindet sich zwischen Wiesen und Sachsenwald im Ortskern von Wohltorf. Die Gemeinde liegt direkt am Rande des Sachsenwaldes – eines der schönsten Naherholungsgebiete im Osten der Metropolregion Hamburg.
Die Bebauung in Wohltorf ist vielseitig. Neben dem charmanten, ursprünglichen...
Das Haus
Kategorie
Doppelhaushälfte
Baujahr
1973
Bezug
sofort
Derzeitige Nutzung
frei
Energie & Heizung
Warum sehe ich diese Anzeige? – Du siehst diese Anzeige basierend auf Ihrer Navigation auf unserer Website und den Suchkriterien, die du verwendet hast.
Energieausweistyp
Bedarfsausweis
Gebäudetyp
Wohngebäude
Baujahr laut Energieausweis
1973
Wesentliche Energieträger
Gas
Gültigkeit
11.03.2026 bis 10.03.2036
Effizienzklasse
G
Endenergiebedarf
245,80 kWh/(m²·a)
Weitere Energiedaten
Energieträger
Gas
Heizungsart
Zentralheizung
Details
Objektbeschreibung
Bei der angebotenen Immobilie handelt es sich um eine klassische Doppelhaushälfte, die 1973 in massiver, solider Bauweise errichtet wurde.
Die Außenwände sind in einem zweischaligen Mauerwerk erstellt und bestehen aus einem innenliegenden Planblock sowie einem klassischen, rot-buntem Vormauerziegel. Das Kellergeschoss...
Ausstattung
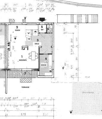
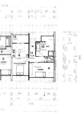
Raumaufteilung
Das Doppelhaus befindet sich auf einem höher gelegenen Grundstück, dessen Topographie zum Hofplatz und zur Straße abschüssig ist. Somit lässt sich die dem Haus vorgelagerte Garage ebenerdig befahren. Hausbewohnern bietet die Garage einen sicheren, direkten Zugang zum Kellergeschoss der Immobilie, während...
Weitere Informationen
Grundstück
Das angebotene Objekt liegt mitten im Herzen von Wohltorf. Verlässt man die Immobilie zur Straßenseite befindet man sich unweit der Einkaufsmöglichkeiten von Aumühle, dessen Kern an den eines kleinen Urlaubdorfs erinnert und in dem alle Besorgungen fußläufig zu erledigen sind. Aber auch der Wald sowie der...
Anbieter der Immobilie
BeSmart Immobilien e.K.
Große Straße 28, 21521 Aumühle

Online-ID: 2nvm95w
Referenznummer: 20260306
Finde Angebote wie dieses
Hier geht es zu unserem Impressum, den Allgemeinen Geschäftsbedingungen, den Hinweisen zum Datenschutz und nutzungsbasierter Online-Werbung.