

VR Bank Heilbronn Schwäbisch Hall eG
Frau Nicole Rudel
079 ···
Nr. anzeigenPreise & Kosten
Kaution
1.746,00
Warum sehe ich diese Anzeige? – Du siehst diese Anzeige basierend auf Ihrer Navigation auf unserer Website und den Suchkriterien, die du verwendet hast.
Lage
SCHWÄBISCH HALL - ZENTRAL IM GRÜNEN WOHNEN.
Hier finden Sie eine perfekte Kombination aus historischem Charme und moderner Infrastruktur.
Die Lage des Mehrfamilienhauses ist ideal für alle, die die Vorzüge einer lebendigen Stadt genießen möchten, aber dennoch Wert auf Ruhe und Privatsphäre legen. Das Wohnquartier - der...
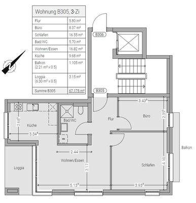
Die Wohnung
Wohnungslage
2. Geschoss
Bezug
01.05.2026
Wohnanlage
Energie & Heizung
Warum sehe ich diese Anzeige? – Du siehst diese Anzeige basierend auf Ihrer Navigation auf unserer Website und den Suchkriterien, die du verwendet hast.
Energieausweis: für diesen Gebäudetyp nicht notwendig
Weitere Energiedaten
Energieträger
Fernwärme
Heizungsart
Fußbodenheizung
Details
Objektbeschreibung
NEUBAUMIETWOHNUNGEN IM "STADTMANN HOF" - SCHWÄBISCH HALL
Willkommen im "Stadtmann Hof"! In zentraler Lage der Kreuzäckersiedlung in Schwäbisch Hall entstehen bis Mai 2026 vier moderne Mehrfamilienhäuser mit 49 exklusiven Mietwohnungen. Ob Single, Paar oder Familie: Mit durchdachten 1- bis 4-Zimmer-Wohnungen mit ca. 45 m²...
Ausstattung
. Erstbezug (Mai 2026)
. 1- bis 4-Zimmer-Wohnungen
. zwischen ca. 45 m² und ca. 102 m² Wohnfläche
. Balkon/Loggia, Terrasse oder Dachterrasse.
. Aufzug zu allen Etagen
. Barrierearm, teilweise barrierefrei
. Großzügige und helle Grundrisse
. Hochwertige Vinylböden
. Feinsteinfliesen in den...
Weitere Informationen
Stichworte
Tiefgarage vorhanden, Fahrradraum, Anzahl der Schlafzimmer: 2, Anzahl der Badezimmer: 1, Anzahl Balkone: 2
Anbieter der Immobilie

Online-ID: 2nvm35h
Referenznummer: 17897_B305
Finde Angebote wie dieses
Hier geht es zu unserem Impressum, den Allgemeinen Geschäftsbedingungen, den Hinweisen zum Datenschutz und nutzungsbasierter Online-Werbung.