
Hacker & Glass Immobilien OHG
Herr Andreas Hacker
004 ···
Nr. anzeigenPreise & Kosten
Provision für Käufer
3,57 % inkl. MwSt. auf den Kaufpreis
Lage
Feldkirchen-Westerham ist eine attraktive Gemeinde im oberbayerischen Landkreis Rosenheim, eingebettet in der malerischen Voralpenlandschaft zwischen dem Tegernsee und dem Chiemsee.
An die Gemeinde grenzt das Fauna-Flora-Habitat-Gebiet Mangfalltal. Am Ort bzw. im nahen Umkreis sind Kindergärten, Schulen aller Sparten...
Das Haus
Kategorie
Bauernhaus
Geschosse
3 Geschosse
Baujahr
1800
Bezug
nach Vereinbarung
Energie & Heizung
Warum sehe ich diese Anzeige? – Du siehst diese Anzeige basierend auf Ihrer Navigation auf unserer Website und den Suchkriterien, die du verwendet hast.
Energieausweistyp
Verbrauchsausweis
Gebäudetyp
Wohngebäude
Baujahr laut Energieausweis
1985
Wesentliche Energieträger
LUFTWP
Gültigkeit
bis 21.10.2035
Effizienzklasse
A
Endenergieverbrauch
49,60 kWh/(m²·a)
Weitere Energiedaten
Haustyp
Massivhaus
Energieträger
Elektro, Holz
Heizungsart
Fußbodenheizung, Luft-/Wasser-Wärmepumpe, Ofen, offener Kamin, Zentralheizung
Details
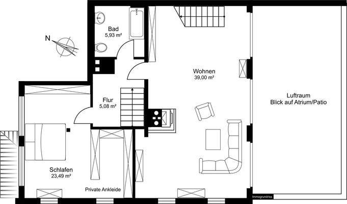
Objektbeschreibung
AUTHENTIZITÄT TRIFFT MODERNE
Ursprünglich stammt die Hofstelle aus dem späten 18. Jahrhundert. 1985 wurde der Stall- und Tennentrakt abgetrennt und als Wohnhaus umgebaut. Bei der Gestaltung der Räume wurde sehr viel sichtbares Holz, sowie antike und einzigartige wunderschöne Treppen- und Türenelemente verwendet. Für...
Ausstattung
AUSSTATTUNG INNEN
- Einbauküche im französischen Stil
- Die Küchengeräte Marke Siemens
- Innenliegendes Erlebnis-Gäste-WC im Erdgeschoss
- Innenliegendes Bad mit Wanne im Obergeschoss
- Ankleidebereich im Schlafzimmer OG
- Holzdecken und Balken auf allen Ebenen
-...
Preisinformation
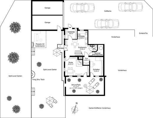
3 Stellplätze
2 Garagenstellplätze, Kaufpreis je: 25.000,00 EUR
Weitere Informationen
Stichworte
Garage vorhanden, Süd-West-Balkon/Terrasse, Nutzfläche: 270,27 m², Anzahl der Schlafzimmer: 2, Anzahl der Badezimmer: 2, Anzahl der separaten WCs: 1
Sonstiges/Wohnen: Galerie
Versorgung: Eigene Stromversorgung
Sonstiges: frei werdend
Anbieter der Immobilie

Hacker & Glass Immobilien OHG
Klenzestraße 7, 80469 München
Online-ID: 2nvkz5l
Referenznummer: BJ1799
Finde Angebote wie dieses
Hier geht es zu unserem Impressum, den Allgemeinen Geschäftsbedingungen, den Hinweisen zum Datenschutz und nutzungsbasierter Online-Werbung.