
CAWG - Chemnitzer Allgemeine Wohnungsbaugenossenschaft eG
CAWG Wohnberaterteam
037 ···
Nr. anzeigenPreise & Kosten
in Warmmiete enthalten
Kaution
1.705,00
Warum sehe ich diese Anzeige? – Du siehst diese Anzeige basierend auf Ihrer Navigation auf unserer Website und den Suchkriterien, die du verwendet hast.
Lage
Der traditionsreiche Chemnitzer Stadtteil Gablenz blickt auf eine über 800-jährige Geschichte zurück. In unmittelbarer Nähe zum malerischen Adelsberg dominieren hier ruhige und grüne Lagen. Nach dem Kaßberg ist Gablenz heute der einwohnerreichste Stadtteil von Chemnitz mit steigender Tendenz. Gepflegte Außenanlagen...
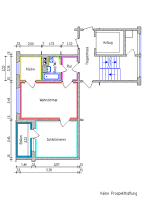
Die Wohnung
Wohnungslage
1. Geschoss
Bezug
sofort
Wohnanlage
Energie & Heizung
Warum sehe ich diese Anzeige? – Du siehst diese Anzeige basierend auf Ihrer Navigation auf unserer Website und den Suchkriterien, die du verwendet hast.
Energieausweistyp
Verbrauchsausweis
Gebäudetyp
Wohngebäude
Wesentliche Energieträger
Fernwärme
Gültigkeit
bis 01.03.2034
Effizienzklasse
C
Endenergieverbrauch
93,00 kWh/(m²·a)
Weitere Energiedaten
Energieträger
Fernwärme
Details
Objektbeschreibung
* Erstbezug nach Sanierung
* sofort bezugsfertig
Alle Bilder sind Originalbilder aus der angebotenen Wohnung!
Die angebotene Wohnung mieten Sie direkt vom Eigentümer mit Sitz in Chemnitz an.
Sie haben Interesse? Dann nehmen Sie Kontakt mit uns auf und vereinbaren Sie Ihren ganz individuellen...
Ausstattung
Aufzug, Wanne, Balkon oder Loggia, Hausreinigung durch Fachfirma, Internet- / Telefon-Flatrate (dt. Festnetz) inkl., Kabelfernsehen inklusive, Keller, umweltfreundliche Fernwärme
Weitere Informationen
Sonstiges
Mit Aufzug
Stichworte
Anzahl der Schlafzimmer: 1, Anzahl der Badezimmer: 1, Anzahl Balkone: 1
Dokumente
Anbieter der Immobilie
CAWG - Chemnitzer Allgemeine Wohnungsbaugenossenschaft eG
Olbersdorfer Straße 25, 09127 Chemnitz
Online-ID: 2nvkb5a
Referenznummer: 50/244/WHG002927
Finde Angebote wie dieses
Hier geht es zu unserem Impressum, den Allgemeinen Geschäftsbedingungen, den Hinweisen zum Datenschutz und nutzungsbasierter Online-Werbung.