
Stadtland Immobilien
Herr Steffen Sigmund
030 ···
Nr. anzeigenPreise & Kosten
Provision für Käufer
provisionsfrei
Lage
Die Immobilie liegt sehr ruhig in einer kleinen Nebenstraße, die von Eigenheimbebauung geprägt ist. Zehdenick-Neuhof ist eingebettet in eine Vielzahl von kleinen Wasserflächen der ehemaligen Tonstiche.Sie finden fußläufig in wenigen Minuten eine Bademöglichkeit. Angler können sich auf den reichen Fischbestand dieser Gewässer...
Das Haus
Kategorie
Einfamilienhaus
Baujahr
2004
Bezug
sofort
Energie & Heizung
Warum sehe ich diese Anzeige? – Du siehst diese Anzeige basierend auf Ihrer Navigation auf unserer Website und den Suchkriterien, die du verwendet hast.
Energieausweistyp
Verbrauchsausweis
Gebäudetyp
Wohngebäude
Baujahr laut Energieausweis
2004
Wesentliche Energieträger
Flüssiggas
Gültigkeit
12.02.2026 bis 12.02.2036
Effizienzklasse
E
Endenergieverbrauch
133,90 kWh/(m²·a)
Weitere Energiedaten
Energieträger
Flüssiggas
Heizungsart
Zentralheizung
Details
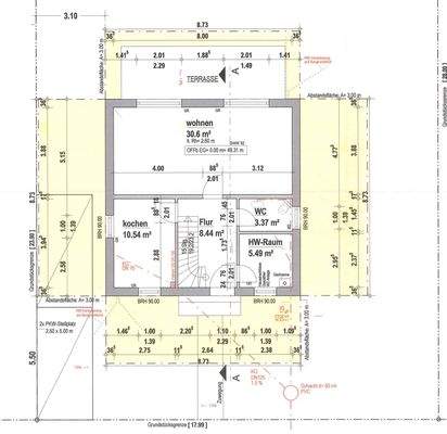
Objektbeschreibung
Wer sucht ihn nicht … den Ort voller Magie, Schönheit, Freiheit … ein grünes Idyll nur wenige Laufminuten vom Wasser entfernt … … gleichzeitig sollte dieser Ort aber helle Räume mit großen Glasflächen haben … über eine sonnige Terrasse für die Sonnenliege verfügen … und lachende Familienabende am Grill möglich machen … Auf...
Ausstattung
Das Haus wurde 2004 massiv errichtet und ist mit einem Ziegeldach bedeckt. Die Außenwände sind gedämmt, verputzt und gestrichen. Die Beheizung erfolgt durch eine Fußbodenheizung im Erdgeschoss und in den Zimmern im OG mit Heizkörpern das Bad im OG verfügt ebenfalls über Fußbodenheizung sowie einen Handtuchheizkörper im OG...
Weitere Informationen
Sonstiges
Der Ort Zehdenick hat durch seine Vielfalt an Wasserflächen, Wäldern und die gut ausgebaute Infrastruktur eine wirklich exponierte Lage. Sie sind in wenigen Minuten in den tiefen Wäldern zum Pilze sammeln oder genießen Ihre Freizeit in einem Boot auf den zahlreichen Seen und Wasserstraßen. Durch den Zugang zur...
Dokumente
Anbieter der Immobilie
Stadtland Immobilien
Klothildestr. 1a, 13156 Berlin
Online-ID: 2nvja5l
Finde Angebote wie dieses
Hier geht es zu unserem Impressum, den Allgemeinen Geschäftsbedingungen, den Hinweisen zum Datenschutz und nutzungsbasierter Online-Werbung.