
Müller Merkle Immobilien GmbH
Frau Doris Stransky
Kontaktiere den Anbieter schriftlich, es ist keine Telefonnummer hinterlegt.
Preise & Kosten
Kaution
3.165,00 €
Warum sehe ich diese Anzeige? – Du siehst diese Anzeige basierend auf Ihrer Navigation auf unserer Website und den Suchkriterien, die du verwendet hast.
Lage
Das Gebäudeensemble in der Tramplerstraße 87/1 - 87/6 befindet sich südwestlich der Innenstadt Lahrs - in gewachsener Lage, umgeben von begrünten Straßen, Ein- und Mehrfamilienhäusern sowie allen wichtigen Einrichtungen des täglichen Bedarfs. Die Anbindung an die Region ist mit den nahegelegenen Bundesstraßen B 414 und B 3...
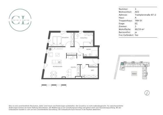
Die Wohnung
Wohnungslage
Erdgeschoss
Bezug
sofort
Wohnanlage
Energie & Heizung
Warum sehe ich diese Anzeige? – Du siehst diese Anzeige basierend auf Ihrer Navigation auf unserer Website und den Suchkriterien, die du verwendet hast.
Energieausweistyp
Bedarfsausweis
Gebäudetyp
Wohngebäude
Wesentliche Energieträger
Fernwärme
Gültigkeit
12.05.2021 bis 12.05.2031
Effizienzklasse
A
Endenergiebedarf
31,00 kWh/(m²·a)
Weitere Energiedaten
Energieträger
Fernwärme
Details
Objektbeschreibung
Eine exklusiv geschnittene 3-Zimmer-Wohnung auf einer Fläche von 88 Quadratmeter präsentiert sich mit zwei Schlafzimmern, einem Duschbad, einem Flur mit kleiner Abstellnische und einem großzügigen Koch-, Ess- und Wohnbereich. Ein zusätzlicher Abstellraum bietet platz für den Waschmaschinen-Anschluss.
Ausstattung
Alle Besonderheiten des Claire & Louise auf einen Blick:
. 114 Mietwohnungen mit 1 bis 4 Zimmern
. Gegensprechanlagen mit Videofunktion und Aufzüge
. mehr als 80% der Wohnungen mit Balkon oder (Dach)Terrasse
. Bodentiefe Fenster- und Fenstertüren
. Glattweiße oder weiß tapezierte Wände
...
Weitere Informationen
Sonstiges
Wir bitten Sie Terminanfragen über das Kontaktformular zu senden.
HAFTUNGSAUSSCHLUSS:
Diese Anzeige dient nur der ersten Information und stellt kein Vertragsangebot dar. Die Anzeige begründet keine vertraglichen Ansprüche. Der Inhalt und die Angaben wurden nach bestem Wissen und Gewissen ermittelt. Für...
Anbieter der Immobilie
Müller Merkle Immobilien GmbH
Galileistraße 1, 69115 Heidelberg
Frau Doris Stransky
Dein Ansprechpartner
Kontaktiere den Anbieter schriftlich, es ist keine Telefonnummer hinterlegt.
Online-ID: 2nvj65v
Referenznummer: LR-CL-A03#EpnLD
Finde Angebote wie dieses
Hier geht es zu unserem Impressum, den Allgemeinen Geschäftsbedingungen, den Hinweisen zum Datenschutz und nutzungsbasierter Online-Werbung.