
valyours Lübeck GmbH
Herr Daniel Heins
004 ···
Nr. anzeigenPreise & Kosten
Provision für Käufer
3,57 % inkl. MwSt. inkl. MwSt.
Lage
Die Immobilie befindet sich im attraktiven nördlichen Teil von Heiligenhafen, nur wenige Schritte von der Ostseeküste entfernt. Die ruhige Lage verbindet sich hier mit einer hervorragenden Infrastruktur: In der näheren Umgebung stehen zahlreiche Einkaufsmöglichkeiten und Dienstleister zur Verfügung, während die Anbindung an...
Das Haus
Kategorie
Einfamilienhaus
Baujahr
1999
Energie & Heizung
Warum sehe ich diese Anzeige? – Du siehst diese Anzeige basierend auf Ihrer Navigation auf unserer Website und den Suchkriterien, die du verwendet hast.
Energieausweistyp
Bedarfsausweis
Gebäudetyp
Wohngebäude
Baujahr laut Energieausweis
1999
Wesentliche Energieträger
GAS
Gültigkeit
bis 30.01.2036
Effizienzklasse
C
Endenergiebedarf
97,40 kWh/(m²·a)
Weitere Energiedaten
Haustyp
Massivhaus
Heizungsart
Zentralheizung
Details
Objektbeschreibung
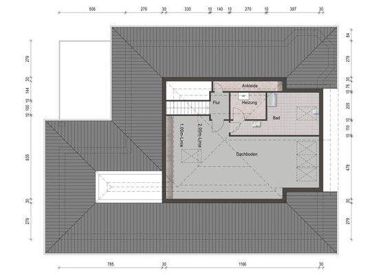
Das im Jahr 1999 massiv errichtete und in den Jahren 2021-2023 umfassend modernisierte Einfamilienhaus, besticht durch sein durchdachtes Raumkonzept auf ca. 284 m² Wohnfläche sowie zusätzlichen ca. 113 m² Gewerbefläche. Auf dem weitläufigen, 1.454 m² großen Grundstück verbindet die Immobilie exklusives Wohnen mit einer...
Preisinformation
5 Stellplätze
5 Garagenstellplätze
Weitere Informationen
Sonstiges
Alle Angaben sind ohne Gewähr und basieren ausschließlich auf Informationen, die uns von unserem Auftraggeber übermittelt wurden. Wir übernehmen keine Gewähr für die Vollständigkeit, Richtigkeit und Aktualität dieser Angaben. Zwischenverkauf vorbehalten.
Stichworte
Garage vorhanden, Stellplatz vorhanden...
Anbieter der Immobilie
Online-ID: 2nvht5b
Referenznummer: W-K-HL-25-057
Finde Angebote wie dieses
Hier geht es zu unserem Impressum, den Allgemeinen Geschäftsbedingungen, den Hinweisen zum Datenschutz und nutzungsbasierter Online-Werbung.