

VR-Bank Donau-Mindel eG
Frau Laura Hittinger
090 ···
Nr. anzeigenPreise & Kosten
Provision für Käufer
2,38 % inkl. MwSt.
Lage
Dillingen an der Donau ist eine Große Kreisstadt und der Verwaltungssitz des gleichnamigen Landkreises im bayerischen Regierungsbezirk Schwaben. Es liegt in Nordschwaben, am Nordufer der Donau im Donauried. Die Grenze zu Baden-Württemberg verläuft etwa 15 km von Dillingen entfernt. Augsburg als nächstgelegenes Oberzentrum...
Die Wohnung
Derzeitige Nutzung
vermietet
Wohnanlage
Energie & Heizung
Warum sehe ich diese Anzeige? – Du siehst diese Anzeige basierend auf Ihrer Navigation auf unserer Website und den Suchkriterien, die du verwendet hast.
Energieausweistyp
Verbrauchsausweis
Gebäudetyp
Wohngebäude
Baujahr laut Energieausweis
1997
Wesentliche Energieträger
Gas
Gültigkeit
17.12.2018 bis 16.12.2028
Effizienzklasse
D
Endenergieverbrauch
101,97 kWh/(m²·a)
Weitere Energiedaten
Energieträger
Gas
Heizungsart
Zentralheizung
Details
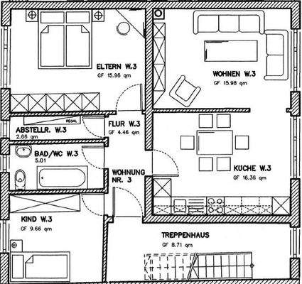
Objektbeschreibung
Diese charmante 3-Zimmer-Stadtwohnung überzeugt durch ihre zentrale Lage, eine gut durchdachte Raumaufteilung und eine gepflegte Ausstattung. Sie bietet ein schönes Zuhause für Paare, kleine Familien oder Berufspendler, die das städtische Leben mit kurzen Wegen schätzen.
Beim Betreten erwartet Sie ein einladender Flur...
Ausstattung
Folgende Modernisierungen/Renovierungen wurden in den letzten Jahren durchgeführt:
. ca. 2013 Instandhaltung Fenster
. ca. 2013 Heizungsaustausch Gas
. ca. 1990 / 1991 Kernsanierung
Preisinformation
Ist-Mieteinnahmen pro Jahr: 5.256,00 EUR
Weitere Informationen
Sonstiges
Alle Angaben in den Exposés sind ohne Gewähr und basieren ausschließlich auf Informationen, die uns von unserem jeweiligen Auftraggeber übermittelt wurden.
Wir übernehmen keine Gewähr für die Vollständigkeit, Richtigkeit und Aktualität dieser Angaben.
Stichworte
Stellplatz vorhanden, Nutzfläche...
Dokumente
Anbieter der Immobilie
VR-Bank Donau-Mindel eG
Kapuzinerstraße 25, 89407 Dillingen a. d. Donau

Online-ID: 2nveg5s
Referenznummer: HS-2275-3
Finde Angebote wie dieses
Hier geht es zu unserem Impressum, den Allgemeinen Geschäftsbedingungen, den Hinweisen zum Datenschutz und nutzungsbasierter Online-Werbung.