
IMAXX Gesellschaft für Immobilien-Marketing mbH
Frau Tabea-Melody Schapöhler
060 ···
Nr. anzeigenPreise & Kosten
Provision für Käufer
provisionsfrei für den Käufer
Lage
Das Neubauprojekt "Wohnen am Sprudelhof II" befindet sich in einer der exklusivsten und renommiertesten Wohnlagen Bad Nauheims - unmittelbar gegenüber dem Sprudelhof und direkt angrenzend an den historischen Kurpark. Diese außergewöhnliche Mikrolage zählt zu den repräsentativsten Adressen der Stadt und vereint auf besondere...
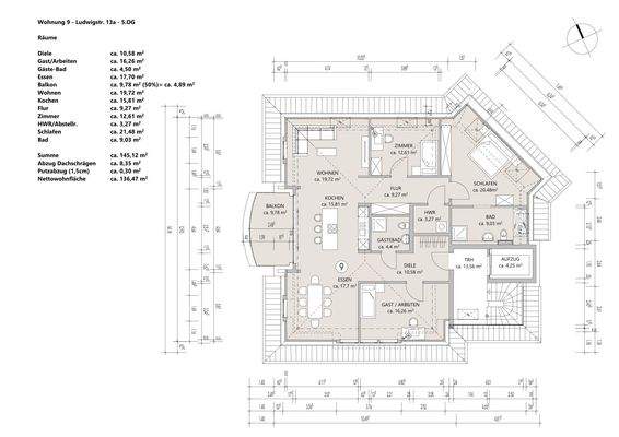
Die Wohnung
Wohnungslage
5. Geschoss (Dachgeschoss)
Bezug
Ende 2027
Wohnanlage
Energie & Heizung
Warum sehe ich diese Anzeige? – Du siehst diese Anzeige basierend auf Ihrer Navigation auf unserer Website und den Suchkriterien, die du verwendet hast.
Energieausweistyp
Bedarfsausweis
Gebäudetyp
Wohngebäude
Wesentliche Energieträger
Strom
Gültigkeit
05.01.2026 bis 05.01.2036
Endenergiebedarf
14,00 kWh/(m²·a)
Weitere Energiedaten
Energieträger
Elektro
Details
Objektbeschreibung
In einer der exklusivsten und renommiertesten Wohnlagen Bad Nauheims, unmittelbar gegenüber dem Sprudelhof, direkt angrenzend an den historischen Kurpark sowie fußläufiger Entfernung zur Fußgängerzone, entsteht mit "Wohnen am Sprudelhof II" ein außergewöhnliches Wohnensemble für höchste Ansprüche. Die besondere Mikrolage...
Ausstattung
- Großzügige, lichtdurchflutete Wohn-, Ess- und Kochbereiche
- Wertige Parkettböden und Fliesen
- Tageslichtbäder
- Wand- und Deckenflächen mit Malervlies
- Fußbodenheizung
- Architektonisch anspruchsvolle Balkone und Terrassen, teilweise mit privaten Gartenanteilen
- Exklusive Etagenwohnungen mit...
Preisinformation
1 Duplex-Stellplatz, Kaufpreis: 29.500,00 EUR
Weitere Informationen
Stichworte
Duplex-Stellplatz vorhanden, Anzahl der Schlafzimmer: 3, Anzahl der Badezimmer: 2, Anzahl Balkone: 1, Balkon-Terrassen-Fläche: 13,00 m², Bundesland: Hessen, Wohnungsnr.: WE-09, Distanz zum Flughafen: 45.0, Distanz zum Hauptbahnhof: 0.45, Distanz zur Autobahn: 4.0, Distanz zum Bus: 0.8
Anbieter der Immobilie
Online-ID: 2nved5r
Referenznummer: 48741
Finde Angebote wie dieses
Hier geht es zu unserem Impressum, den Allgemeinen Geschäftsbedingungen, den Hinweisen zum Datenschutz und nutzungsbasierter Online-Werbung.