
HausHirsch GmbH
Herr Zeljko Cakaric
004 ···
Nr. anzeigenPreise & Kosten
Provision für Käufer
3,87 %
Lage
Die Immobilie befindet sich in absolut zentraler Innenstadtlage, zwischen Hauptbahnhof und Fußgängerzone. Sämtliche Einrichtungen des täglichen Bedarfs, Einkaufsmöglichkeiten, Gastronomie sowie kulturelle Angebote sind fußläufig erreichbar.
Der Hauptbahnhof ist in wenigen Minuten zu Fuß erreichbar, ebenso die Innenstadt...
Die Wohnung
Wohnanlage
Energie & Heizung
Warum sehe ich diese Anzeige? – Du siehst diese Anzeige basierend auf Ihrer Navigation auf unserer Website und den Suchkriterien, die du verwendet hast.
Weitere Energiedaten
Energieträger
Gas
Details
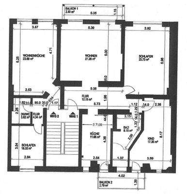
Objektbeschreibung
Diese außergewöhnliche Altbauetage vereint repräsentative Architektur mit modernem Wohnkomfort auf höchstem Niveau und bietet Ihnen ein attrakives Wohnungspaket mit einer 3 und einer 2 Zimmer Wohnung - Ideal für als Kapitalanlage oder zur Selbstnutzung und Vermietung.
Die Wohnungen befinden sich im ersten Obergeschoss...
Ausstattung
Repräsentative Altbauetage im 1. Obergeschoss eines gepflegten Altbaus
Ca. 3,60 m hohe Decken mit aufwändigem Original- und Designstuck
Hochwertige Modernisierung in den Jahren 2017/2018
Aktuell aufgeteilt in zwei eigenständige Wohneinheiten mit separaten Eingängen
Gesamtwohnfläche von ca. 152 m²...
Preisinformation
Mobiliar + 10.000 Euro
Weitere Informationen
Stichworte
Anzahl der Schlafzimmer: 3, Anzahl der Badezimmer: 2, Balkon-Terrassen-Fläche: 2,00 m², Anzahl der Wohneinheiten: 2, Bundesland: Hessen, 1 Etagen
Anbieter der Immobilie
Online-ID: 2nvdm5b
Referenznummer: SC287
Finde Angebote wie dieses
Hier geht es zu unserem Impressum, den Allgemeinen Geschäftsbedingungen, den Hinweisen zum Datenschutz und nutzungsbasierter Online-Werbung.