

Harald Wacker Immobilien & Finanzdienstleistungen e.K.
Herr Harald Wacker
070 ···
Nr. anzeigenPreise & Kosten
Provision für Käufer
2,975% vom Kaufpreis inkl. 19% Mwst
Lage
1A-Lage
Die Immobilie befindet sich im Stadtteil Gebersheim der Stadt Leonberg in einem gewachsenen und ruhigen Wohngebiet. Die Nachbarschaft ist geprägt von Ein- und Reihenhäusern und bietet ein angenehmes, familienfreundliches Umfeld.
Schulen, Kindergärten, Einkaufsmöglichkeiten und Einrichtungen des täglichen...
Das Haus
Kategorie
Reihenendhaus
Baujahr
1972
Bezug
frei bzw. nach Vereinbarung
Derzeitige Nutzung
frei
Energie & Heizung
Warum sehe ich diese Anzeige? – Du siehst diese Anzeige basierend auf Ihrer Navigation auf unserer Website und den Suchkriterien, die du verwendet hast.
Energieausweistyp
Bedarfsausweis
Gebäudetyp
Wohngebäude
Baujahr laut Energieausweis
1972
Wesentliche Energieträger
Öl
Gültigkeit
11.10.2024 bis 10.10.2034
Effizienzklasse
F
Endenergiebedarf
194,30 kWh/(m²·a)
Weitere Energiedaten
Energieträger
Öl
Heizungsart
Zentralheizung
Details
Objektbeschreibung
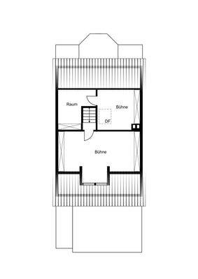
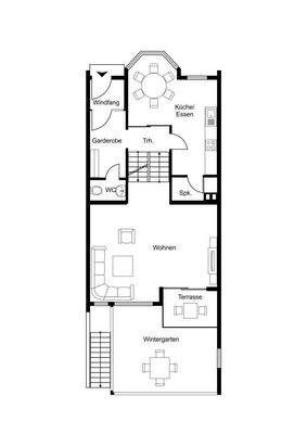
Dieses charmante Reiheneckhaus aus dem Jahr 1972 befindet sich in ruhiger Wohnlage von Leonberg-Gebersheim auf einem ca. 358 m² großen Grundstück. Mit rund 123 m² Wohnfläche, verteilt auf mehrere Ebenen in Split-Level-Bauweise, bietet die Immobilie eine besondere Architektur mit klar gegliederten Wohn- und...
Ausstattung
Das Haus befindet sich in einem dem Baujahr entsprechenden Zustand und bietet eine solide bauliche Grundlage. Sanierungs- und Renovierungsmaßnahmen sind erforderlich, eröffnen jedoch die attraktive Möglichkeit, die Immobilie nach eigenen Vorstellungen zu modernisieren und individuell zu gestalten.
Zur Ausstattung gehören...
Preisinformation
3 Garagenstellplätze
Weitere Informationen
Sonstiges
Dieses Reiheneckhaus bietet eine hervorragende Grundlage für Käuferinnen und Käufer, die ein Zuhause mit Entwicklungspotenzial in ruhiger Lage suchen. Die besondere Split-Level-Architektur, der Wintergarten, der Garten sowie die großzügigen Nebenflächen schaffen beste Voraussetzungen für ein individuelles...
Anbieter der Immobilie
Harald Wacker Immobilien & Finanzdienstleistungen e.K.
Jahnstr. 1, 71032 Böblingen

Online-ID: 2nvdh5s
Referenznummer: 297
Finde Angebote wie dieses
Hier geht es zu unserem Impressum, den Allgemeinen Geschäftsbedingungen, den Hinweisen zum Datenschutz und nutzungsbasierter Online-Werbung.