

Michel Runge Immobilien
Herr Michel Runge
+49 ···
Nr. anzeigenPreise & Kosten
Provision für Käufer
provisionsfrei
Lage
Die Wohnung befindet sich im Ortsteil Ihme-Roloven der Stadt Ronnenberg. Ihme-Roloven ist besonders wegen seiner ruhigen, naturnahen Lage sowie der guten Anbindung an Hannover und die umliegenden Orte sehr beliebt. Der Ortsteil verbindet dörflichen Charme mit der Nähe zur Landeshauptstadt und genießt einen guten Ruf im...
Die Wohnung
Wohnanlage
Details
Objektbeschreibung
Die hier beschriebene Wohnung befindet sich in einem Mehrfamilienhaus in Ihme-Roloven, dessen Bau im ersten Jahre 2026 beginnt.
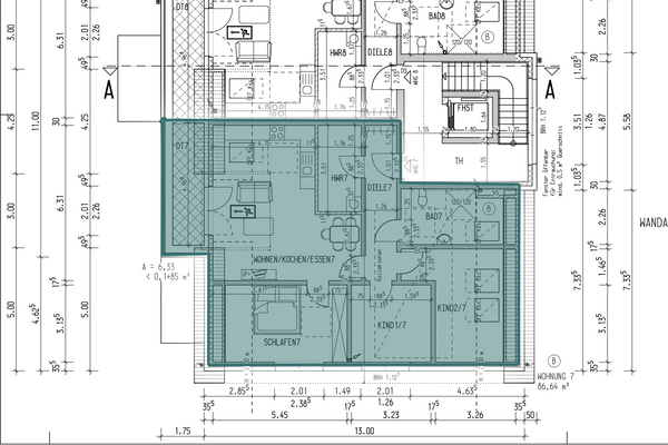
Es handelt sich um eine 4-Zimmer-Wohnung mit Balkon und Stellplatz.
Das Mehrfamilienhaus ist in einer Seitenstraße. Diese liegt sich inmitten einer ruhigen Wohnsiedlung, Sie finden alle...
Ausstattung
Haustechnik
Die Wohnung wird durch eine moderne Wärmepumpe beheizt, dessen Wärme über die Fußbodenheizung verteilt wird.
Es wird eine hocheffiziente Abluftwärmepumpe mit kombinierter Lüftungsanlage verbaut, welche nur Ihre Wohnung versorgt. So sind sie in Ihrer Wohnung unabhängig.
Neben der Wärmepumpe und der...
Weitere Informationen
Sonstiges
Bitte haben Sie Verständnis dafür, dass wir nur vollständige Anfragen beantworten können. Bitte teilen Sie uns bei Ihrer Anfrage daher Ihren vollständigen Namen, Ihre Anschrift, eine E-Mail-Adresse sowie eine Telefonnummer mit.
Eine Besichtigung ist jederzeit nach vorheriger Terminvereinbarung...
Anbieter der Immobilie
Michel Runge Immobilien
Hauptstraße 7, 30974 Wennigsen

Online-ID: 2nvd35j
Referenznummer: 132898533#i3Y7M
Finde Angebote wie dieses
Hier geht es zu unserem Impressum, den Allgemeinen Geschäftsbedingungen, den Hinweisen zum Datenschutz und nutzungsbasierter Online-Werbung.