

SIS-Sparkassen-Immobilien-Service GmbH
Herr Michael Hencky
089 ···
Nr. anzeigenPreise & Kosten
Provision für Käufer
provisionsfrei
Lage
Oberaudorf, mit seinem malerischen Ortsteil Niederaudorf, gilt als Perle des Inntals und liegt in einer der schönsten und vielseitigsten Bergregionen Oberbayerns. Umgeben von beeindruckender Natur bietet diese Lage zu jeder Jahreszeit eine Vielzahl an Freizeitmöglichkeiten für Erholungs- und Aktivurlauber. Im Sommer laden...
Das Haus
Kategorie
Einfamilienhaus
Baujahr
2027
Bezug
Q3/ Q4 2027
Energie & Heizung
Warum sehe ich diese Anzeige? – Du siehst diese Anzeige basierend auf Ihrer Navigation auf unserer Website und den Suchkriterien, die du verwendet hast.
Energieausweis: für diesen Gebäudetyp nicht notwendig
Weitere Energiedaten
Haustyp
Massivhaus
Heizungsart
Fußbodenheizung, offener Kamin, Zentralheizung
Details
Objektbeschreibung
Kurzbeschreibung
Gemeinde Oberaudorf - Ortsteil Niederaudorf
Objekt
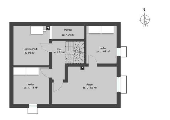
Auf einem ca. 451 m² großen, real geteilten Grundstück, nur wenige Gehminuten vom Ortskern entfernt, entsteht ein großzügiges Einfamilienhaus in massiver, wärmegedämmter Ziegelbauweise samt Blockwandschalung im Obergeschoss. Der Bau erfolgt durch...
Ausstattung
Individuelle Ausstattungsmerkmale:
- Küche mit Fenster
- Handtuchheizung
- Wärmepumpe
Weitere Informationen
Sonstiges
Sämtliche Bilder in diesem Exposé sind urheberrechtlich geschützt und dürfen nicht durch Dritte verwendet bzw. weitergegeben werden. Dieses Exposé wurde mit Sorgfalt zusammengestellt. Alle darin enthaltenen Angaben über das Objekt beruhen auf Informationen des Verkäufers. Eine Haftung für deren Richtigkeit und...
Anbieter der Immobilie

Online-ID: 2nvcn5e
Referenznummer: 1/20/020-021/012169-1
Finde Angebote wie dieses
Hier geht es zu unserem Impressum, den Allgemeinen Geschäftsbedingungen, den Hinweisen zum Datenschutz und nutzungsbasierter Online-Werbung.