

Brandes-Immobilien
Herrn Robin Brandes
053 ···
Nr. anzeigenPreise & Kosten
zzgl. Nebenkosten
Kaution
2700
Provision für Mieter
2558,50€ inkl. MwSt.
Warum sehe ich diese Anzeige? – Du siehst diese Anzeige basierend auf Ihrer Navigation auf unserer Website und den Suchkriterien, die du verwendet hast.
Lage
Die Bürofläche im Bereich des Gewerbegebiets der Sudetenstraße. Der Bereich zeichnet sich durch eine gute Anbindung an öffentliche Verkehrsmittel sowie an das Autobahnnetz. In unmittelbarer Nähe befinden sich auch Parkmöglichkeiten und Grünflächen, insbesondere der Ölpersee läd zu jeder Jahreszeit zum Spaziergang ein...
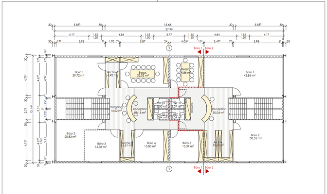
Büro-/Praxisfläche
Kategorie
Bürofläche
Baujahr
1986
Geschoss
1. Geschoss
Details
Objektbeschreibung
Diese Bürofläche wurde im Jahr 1986 erbaut und befindet sich auf der ersten Etage eines einstöckigen Gebäudes. Der Zustand der Räumlichkeiten ist neuwertig, sodass sich die Immobilie in einem top modernen Zustand präsentiert. Insgesamt verfügt die Bürofläche über vier Zimmer, die vielfältige Nutzungsmöglichkeiten...
Ausstattung
ANGABEN ZUM ENERGIEAUSWEIS:
Da sowohl Privatpersonen als auch Makler ab dem 01. Mai 2014 gesetzlich verpflichtet sind, Interessenten einen Energieausweis des angebotenen Objekts auszuhändigen, weisen wir vorsorglich schon einmal darauf hin, dass der Energieausweis für das Objekt beantragt ist. Dieser wird Ihnen...
Weitere Informationen
Stichworte
Gesamtfläche: 157,00 m², Anzahl der separaten WCs: 2, 1 Etagen
Anbieter der Immobilie
Brandes-Immobilien
Celler Heerstraße 30, 38114 Braunschweig

Online-ID: 2nvbj5r
Referenznummer: 556693#ON14T
Finde Angebote wie dieses
Hier geht es zu unserem Impressum, den Allgemeinen Geschäftsbedingungen, den Hinweisen zum Datenschutz und nutzungsbasierter Online-Werbung.