
ohne-makler.net - Immobilien selbst vermarkten
Privat vom Eigentümer
Kontaktiere den Anbieter schriftlich, es ist keine Telefonnummer hinterlegt.
Preise & Kosten
nicht in Warmmiete enthalten
Kaution
2.500,00
Warum sehe ich diese Anzeige? – Du siehst diese Anzeige basierend auf Ihrer Navigation auf unserer Website und den Suchkriterien, die du verwendet hast.
Lage
- Attraktive Lage am Stadtberg, wenige Minuten zur Innenstadt.
- Supermärkte, Cafés, Restaurants, Arzt & Apotheke in direkter Nähe
- Freizeitmöglichkeiten: Spaziergänge an der Donau, Radwege, Freibad "Eichwaldbad", kulturelle Angebote
- Verkehrsanbindung: Bahnhof Dillingen (regelmäßige Verbindungen nach Ulm...
Die Wohnung
Kategorie
Maisonette
Wohnungslage
Erdgeschoss
Bezug
sofort
Wohnanlage
Energie & Heizung
Warum sehe ich diese Anzeige? – Du siehst diese Anzeige basierend auf Ihrer Navigation auf unserer Website und den Suchkriterien, die du verwendet hast.
Energieausweis: für diesen Gebäudetyp nicht notwendig
Weitere Energiedaten
Energieträger
Gas
Heizungsart
Zentralheizung
Details
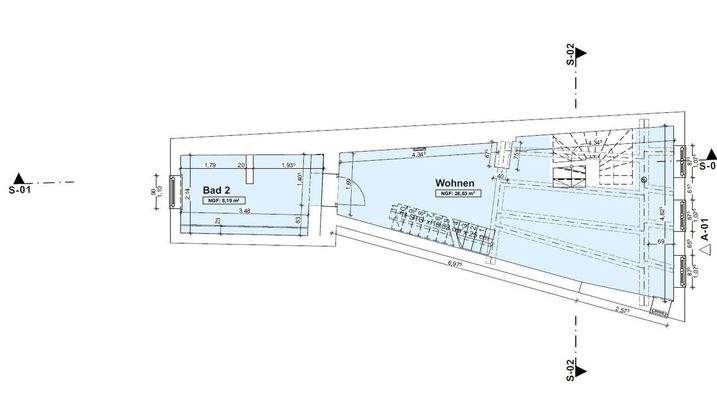
Objektbeschreibung
Dieses hochwertig sanierte Haus auf 4 Etagen vereint modernes Wohnen mit einem durchdachten Raumkonzept. Die offene und großzügige Gestaltung vermittelt ein modernes Wohngefühl - ideal für Homeoffice, geselliges Beisammensein oder entspannte Abende nach einem langen Tag.
Im Erdgeschoss befindet sich ein besonderes...
Ausstattung
Keller, Duschbad, Einbauküche, Gäste-WC, Laminat, Teppichboden, Fliesen
Bemerkungen:
- Offener, großzügiger Grundriss auf 4 Etagen
- EG: private Bar, Gäste-WC, Hauswirtschaftsraum
- 1.OG: Wohn-/Essbereich mit moderner Einbauküche, Arbeits-/Kinderzimmer mit Tageslichtbad
- 2.OG: Wohnzimmer, Homeoffice...
Preisinformation
2 Stellplätze
Nettokaltmiete: 1.050,00 EUR
Weitere Informationen
Sonstiges
Heizungsart: Zentralheizung
Energieträger: Gas
Haben wir Ihr Interesse geweckt?
Zögern Sie nicht und vereinbaren Sie einen Besichtigungstermin - wir freuen uns darauf, Ihnen dieses besondere Stadthaus persönlich vorzustellen!
Bei Interesse benötigen wir von Ihnen die folgenden...
Dokumente
Anbieter der Immobilie
ohne-makler.net - Immobilien selbst vermarkten
Humboldtstr. 25 A, 21509 Glinde
Privat vom Eigentümer
Dein Ansprechpartner
Kontaktiere den Anbieter schriftlich, es ist keine Telefonnummer hinterlegt.
Online-ID: 2nval5w
Referenznummer: 433133
Finde Angebote wie dieses
Hier geht es zu unserem Impressum, den Allgemeinen Geschäftsbedingungen, den Hinweisen zum Datenschutz und nutzungsbasierter Online-Werbung.