
BUWOG Immobilien Treuhand GmbH
Herr Nils Niklas Jan Knaupp
Kontaktiere den Anbieter schriftlich, es ist keine Telefonnummer hinterlegt.
Preise & Kosten
in Warmmiete enthalten
Kaution
5.862,39
Warum sehe ich diese Anzeige? – Du siehst diese Anzeige basierend auf Ihrer Navigation auf unserer Website und den Suchkriterien, die du verwendet hast.
Lage
Das Neubauprojekt befindet sich in Berlin-Spandau, direkt an der Havel. Die exklusive Wasserlage verleiht dem Wohnensemble eine besondere Atmosphäre und sorgt für eine hohe Lebensqualität. Eingebettet in eine grüne Umgebung bietet das Quartier einen perfekten Mix aus urbanem Wohnen und naturnahem Lebensstil.
Die...
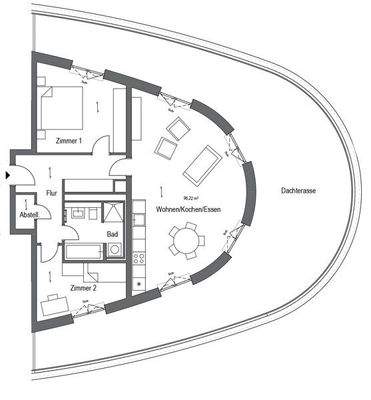
Die Wohnung
Wohnungslage
5. Geschoss
Bezug
sofort
Wohnanlage
Energie & Heizung
Warum sehe ich diese Anzeige? – Du siehst diese Anzeige basierend auf Ihrer Navigation auf unserer Website und den Suchkriterien, die du verwendet hast.
Energieausweistyp
Bedarfsausweis
Gebäudetyp
Wohngebäude
Baujahr laut Energieausweis
2024
Gültigkeit
bis 23.01.2034
Effizienzklasse
B
Endenergiebedarf
60,00 kWh/(m²·a)
Weitere Energiedaten
Energieträger
Fernwärme
Details
Objektbeschreibung
Die Neubau-Mietwohnungen überzeugen durch ihre gehobene Ausstattung, großzügige Raumhöhen sowie durch eine durchdachte Architektur mit geschwungenen Linien und sanften Rundungen. Dies schafft ein offenes und einladendes Wohnambiente.
Bei der Einrichtung handelt es sich um eine digitale Einrichtung. Die gezeigten...
Ausstattung
Barrierefreies Gebäude; Aufzug; offene Küche; Abstellraum; Mieterkeller; Fahrradabstellraum; Videosprechanlage; vollständige Wärmedämmung; Spielplatz; Mehrfamilienhaus;
Weitere Informationen
Sonstiges
Hinweise darüber, wie die BUWOG-Immobilien Treuhand Ihre personenbezogenen Daten als Interessent verarbeitet, erhalten Sie unter www.buwog-immobilientreuhand.de/datenschutz. Alle Angaben in diesem Exposé wurden sorgfältig und so vollständig wie möglich gemacht. Gleichwohl kann das Vorhandensein von Fehlern nicht...
Anbieter der Immobilie
BUWOG Immobilien Treuhand GmbH
Bramfelder Chaussee 104 a, 22177 Hamburg
Herr Nils Niklas Jan Knaupp
Dein Ansprechpartner
Kontaktiere den Anbieter schriftlich, es ist keine Telefonnummer hinterlegt.
Online-ID: 2nv9h5n
Referenznummer: 90-1811950044
Finde Angebote wie dieses
Hier geht es zu unserem Impressum, den Allgemeinen Geschäftsbedingungen, den Hinweisen zum Datenschutz und nutzungsbasierter Online-Werbung.