

DAHLER & COMPANY Alstertal GmbH & Co. KG
Firma DAHLER Hamburg Alstertal
040 ···
Nr. anzeigenPreise & Kosten
Provision für Käufer
3,57% inkl. gesetzl. MwSt. Käuferprovision bezogen auf den Kaufpreis
Lage
Das angebotene Objekt befindet sich in einer guten Lage des begehrten Hamburger Stadtteils Wohldorf-Ohlstedt. Der dörfliche Charakter ist trotz der gut entwickelten Infrastruktur nicht verloren gegangen.
Für den Einkauf stehen im Ohlstedter Ortskern kleinere Geschäfte sowie ein zweimal wöchentlich stattfindender...
Das Haus
Baujahr
1973
Energie & Heizung
Warum sehe ich diese Anzeige? – Du siehst diese Anzeige basierend auf Ihrer Navigation auf unserer Website und den Suchkriterien, die du verwendet hast.
Energieausweistyp
Bedarfsausweis
Gebäudetyp
Wohngebäude
Baujahr laut Energieausweis
1973
Wesentliche Energieträger
OEL
Gültigkeit
bis 13.11.2034
Effizienzklasse
H
Endenergiebedarf
290,10 kWh/(m²·a)
Weitere Energiedaten
Haustyp
Massivhaus
Energieträger
Öl
Heizungsart
offener Kamin
Details
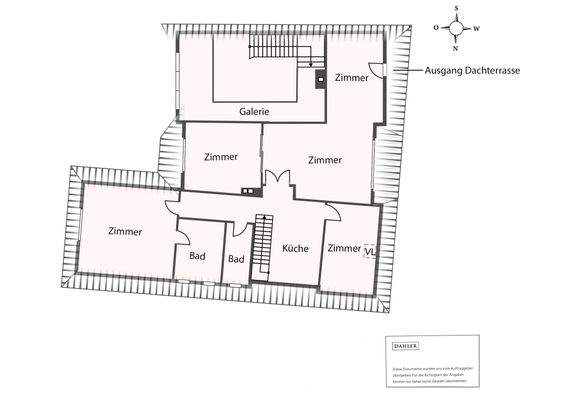
Objektbeschreibung
Diese außergewöhnliche Immobilie befindet sich in der idyllischen und grünen Lage von Hamburg-Ohlstedt und bietet auf einem großzügigen Grundstück von ca. 1.416 m² die perfekte Mischung aus Ruhe, Natur und gleichzeitig optimaler Anbindung an das Hamburger Stadtzentrum.
Die Architekten Landhausvilla mit Teilkeller...
Ausstattung
Erdgeschoss:
* hohe Decken im Wohnbereich sowie großzügige Fensterfronten sorgen für ein angenehmes
Raumgefühl
* Erneuerung der Einbauküche und der Bäder im Jahr 1997
* die Küche ist gut ausgestattet und bietet ausreichend Platz für kulinarische Erlebnisse und ein
Frühstück mit Gartenblick, schließbar...
Preisinformation
2 Stellplätze
2 Garagenstellplätze
Weitere Informationen
Sonstiges
Die vom Käufer im Falle eines Ankaufs an die Dahler & Company Alstertal GmbH & Co. KG zu zahlende Provision beträgt 3,57 % inkl. der gesetzl. MwSt. bezogen auf den Kaufpreis.
Stichworte
Stellplatz vorhanden, Anzahl Terrassen: 1
Sonstiges/Wohnen: Einliegerwohnung, Dachboden
Anbieter der Immobilie

Online-ID: 2nv7l5l
Referenznummer: DC-HAR35793
Finde Angebote wie dieses
Hier geht es zu unserem Impressum, den Allgemeinen Geschäftsbedingungen, den Hinweisen zum Datenschutz und nutzungsbasierter Online-Werbung.