
ProPotsdam GmbH - Grundstücksentwicklung u. Vertrieb
Kontaktiere den Anbieter schriftlich, es ist keine Telefonnummer hinterlegt.
Preise & Kosten
Provision für Käufer
provisionsfrei
Das Haus
Geschosse
2 Geschosse
Baujahr
1786
Derzeitige Nutzung
vermietet
Energie & Heizung
Warum sehe ich diese Anzeige? – Du siehst diese Anzeige basierend auf Ihrer Navigation auf unserer Website und den Suchkriterien, die du verwendet hast.
Energieausweistyp
Bedarfsausweis
Gebäudetyp
Wohngebäude
Baujahr laut Energieausweis
1786
Wesentliche Energieträger
Gas, Kohle
Gültigkeit
seit 07.12.2018
Effizienzklasse
H
Endenergiebedarf
293,00 kWh/(m²·a)
Weitere Energiedaten
Energieträger
Gas, Kohle
Heizungsart
Ofen
Details
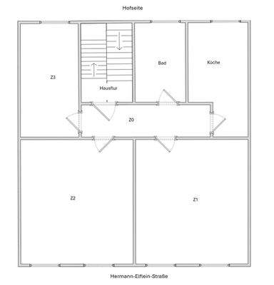
Objektbeschreibung
Auf dem ca. 191 m² großen Grundstück befindet sich ein Mehrfamilienhaus in Blockrandbebauung, das ca. 1786 errichtet und nach 1990 in sehr geringem Umfang teilsaniert wurde. Das Gebäude mit Satteldachkonstruktion ist ein unterkellerter, zweigeschossiger Mauerwerksbauwerk mit teilausgebautem Dachgeschoss und begehbarem...
Ausstattung
Es handelt sich um einen unterkellerten, 2-geschossigen Mauerwerksbau mit teilausgebauten Dachgeschoss. Die Innenwände sind massiv bzw. in Leichtbauweise ausgeführt. Die Geschossdecken sind Holzbalkendecken, die Kellerdecke ist massiv. Die Fußböden sind teilweise Holzdielung, Belag bzw. Fliesen. Die Warmwasserversorgung u...
Weitere Informationen
Sonstiges
Die Ausschreibungsbedingungen entnehmen Sie bitte dem Exposé. Dieses steht unter: https://www.propotsdam.de/erwerben/verkaufsobjekte/verkaufsobjektdetails/wohn-u-geschaeftshaus-in-der-potsdamer-innenstadt/ zum Download zur Verfügung.
Angebotsabgabe: Kaufinteressierte werden gebeten, die auf Seite 7 - 8...
Anbieter der Immobilie
ProPotsdam GmbH - Grundstücksentwicklung u. Vertrieb
Pappelallee 4, 14469 Potsdam
Kontaktiere den Anbieter schriftlich, es ist keine Telefonnummer hinterlegt.
Online-ID: 2nv6e5l
Referenznummer: Hermann-Elflein-Straße 24 in Potsdam
Finde Angebote wie dieses
Hier geht es zu unserem Impressum, den Allgemeinen Geschäftsbedingungen, den Hinweisen zum Datenschutz und nutzungsbasierter Online-Werbung.