
Immobilien Nadler
Herr Jochen Nadler
091 ···
Nr. anzeigenPreise & Kosten
Kaution
1.950,00
Warum sehe ich diese Anzeige? – Du siehst diese Anzeige basierend auf Ihrer Navigation auf unserer Website und den Suchkriterien, die du verwendet hast.
Lage
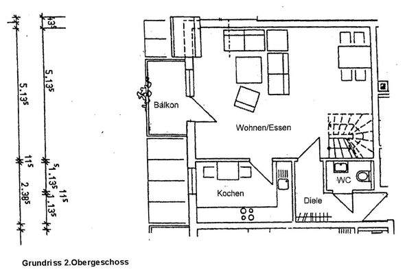
Die Maisonette-Wohnung befindet sich im 2. Ober- und Dachgeschoss von einer Wohnanlage in Herzogenaurach-Lohhhofgebiet.
Die Wohnung
Kategorie
Maisonette
Wohnungslage
Dachgeschoss
Bezug
01.06.2026
Wohnanlage
Energie & Heizung
Warum sehe ich diese Anzeige? – Du siehst diese Anzeige basierend auf Ihrer Navigation auf unserer Website und den Suchkriterien, die du verwendet hast.
Energieausweistyp
Verbrauchsausweis
Gebäudetyp
Wohngebäude
Baujahr laut Energieausweis
1992
Wesentliche Energieträger
Gas
Gültigkeit
25.01.2019 bis 24.01.2029
Effizienzklasse
D
Endenergieverbrauch
102,00 kWh/(m²·a) - Warmwasser enthalten
Weitere Energiedaten
Energieträger
Gas
Heizungsart
Zentralheizung
Details
Ausstattung
2.Obergeschoss:
großzügiges Wohn-/Esszimmer mit Zugang zum Süd-West-Balkon
Kochbereich mit Einbauküche
innenliegendes Gäste-WC
Dachgeschoss:
zwei Schlafzimmer
innenliegendes Badezimmer
Spitzboden:
offener Bereich mit zwei Dachflächenfenstern
Sonstiges:
Gaszentralheizung
Zur...
Weitere Informationen
Baujahr
1992
Heizungsart
Gaszentralheizung
beziehbar
01.06.2026
Allgem.Geschäftsbed.
Unsere nachstehenden Geschäftsbedingungen werden zusammen mit der Objektbeschreibung Bestandteil der beiderseitigen Vereinbarungen
1. Wir versichern, dass wir vom Eigentümer oder einem berechtigten...
Anbieter der Immobilie
Online-ID: 2nv4z5g
Referenznummer: WO 2723
Finde Angebote wie dieses
Hier geht es zu unserem Impressum, den Allgemeinen Geschäftsbedingungen, den Hinweisen zum Datenschutz und nutzungsbasierter Online-Werbung.