
HausHirsch GmbH
Herr Mario Costa
+97 ···
Nr. anzeigenPreise & Kosten
Provision für Käufer
provisionsfrei
Abschreibung/Anlage
Denkmalschutz-Afa
Lage
Mitten im Herzen der Stadt gelegen, bietet diese Immobilie unvergleichlichen Komfort und gute Erreichbarkeit. In einem pulsierenden Viertel gelegen, sind Sie nur wenige Minuten von einer Reihe von Annehmlichkeiten entfernt, darunter gehobene Einkaufszentren, Gourmet-Restaurants und trendige Cafés. Die Gegend verfügt über eine...
Die Wohnung
Bezug
Q4 2027
Wohnanlage
Details
Objektbeschreibung
Willkommen in einer modernen Wohnanlage im Dubai Land Residence Complex, die zeitgenössische Architektur mit einem warmen, gemeinschaftsorientierten Wohnerlebnis verbindet. Die Immobilie zeichnet sich durch eine schlichte, symmetrische Fassade und durchdacht gestaltete Innenräume aus, in denen natürliches Licht, offene...
Ausstattung
Ausgestattet mit einer Mischung aus moderner Haustechnik und hochwertiger Innenausstattung, die für mehr Komfort, Bequemlichkeit und Langlebigkeit sorgt. Die Wohnungen sind mit erstklassigen Materialien ausgestattet, darunter Arbeitsplatten aus Kunststein, zeitgemäße Schränke und hochwertige Bodenbeläge, die jeder Einheit ein...
Weitere Informationen
Sonstiges
DubaiView - Our selected properties in Dubai - https://dubaiview.com/properties/
Stichworte
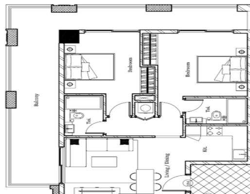
Nutzfläche: 67,82 m², Anzahl der Schlafzimmer: 2, Anzahl der Badezimmer: 2, Anzahl Balkone: 1, Balkon-Terrassen-Fläche: 33,19 m², Bundesland: Dubai
Anbieter der Immobilie
Online-ID: 2nv3l5q
Referenznummer: Beverly Park 2BHK APT-DV-9982
Finde Angebote wie dieses
Hier geht es zu unserem Impressum, den Allgemeinen Geschäftsbedingungen, den Hinweisen zum Datenschutz und nutzungsbasierter Online-Werbung.